Terreno para construção para Venda

€ 280.000
1.000 m²

Nota

Anúncio atualizado em 04/05/2026
Descrição

referência: 26550

OPATIJA, MATULJI, CENTAR- građevinsko zemljište 1000m2 S GRAĐEVINSKOM DOZVOLOM i pogledom na more

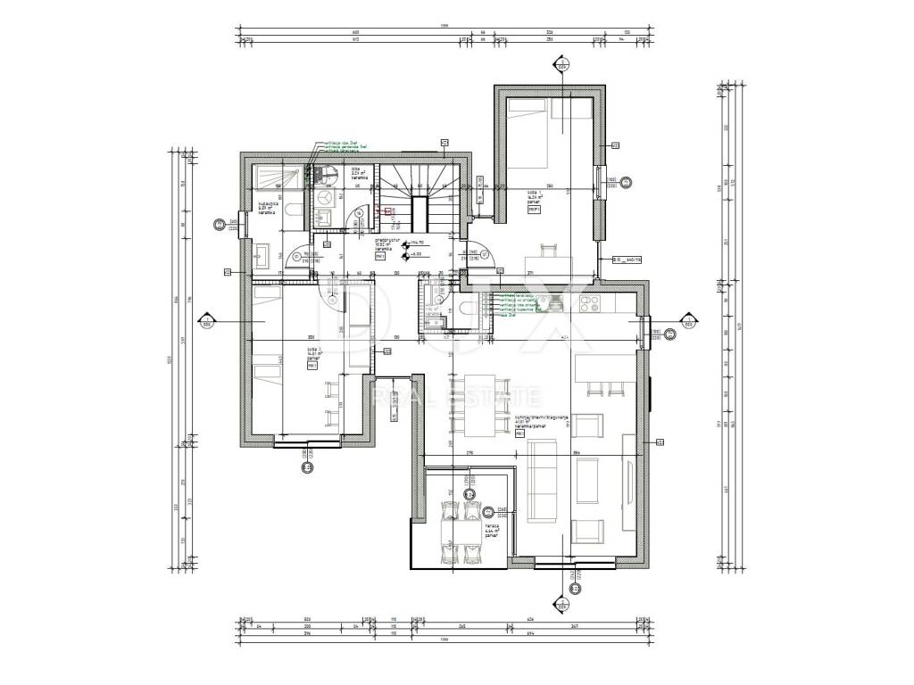
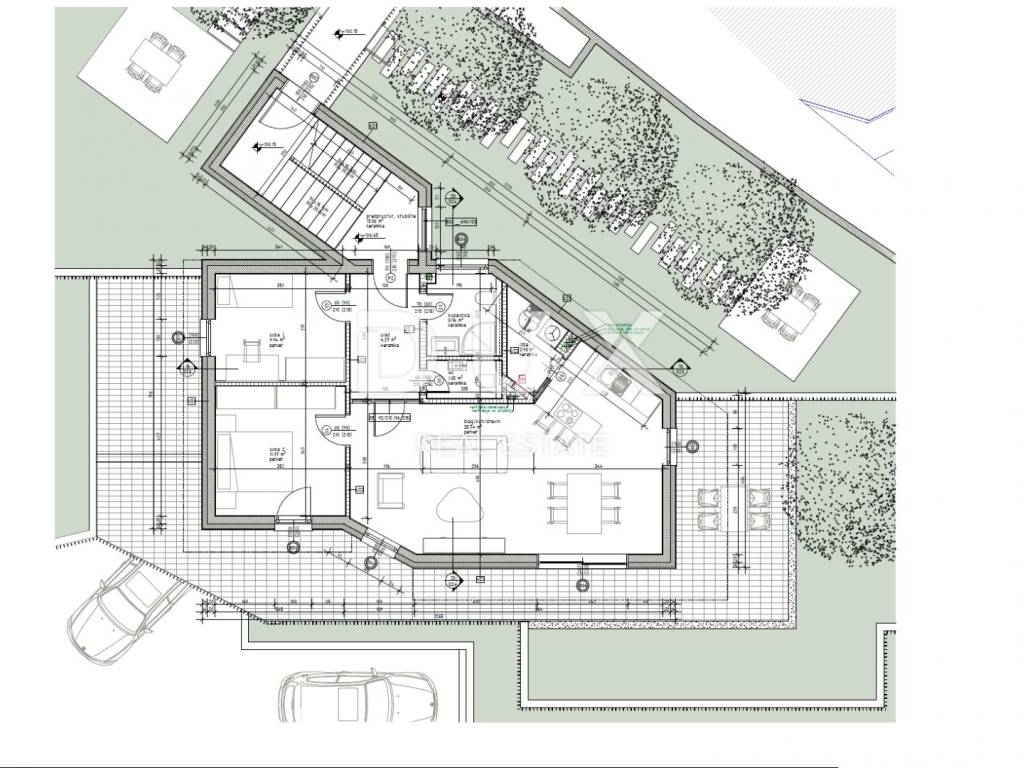
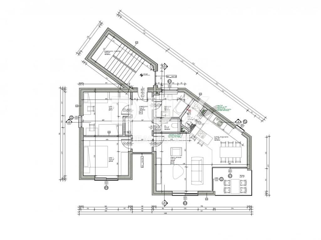
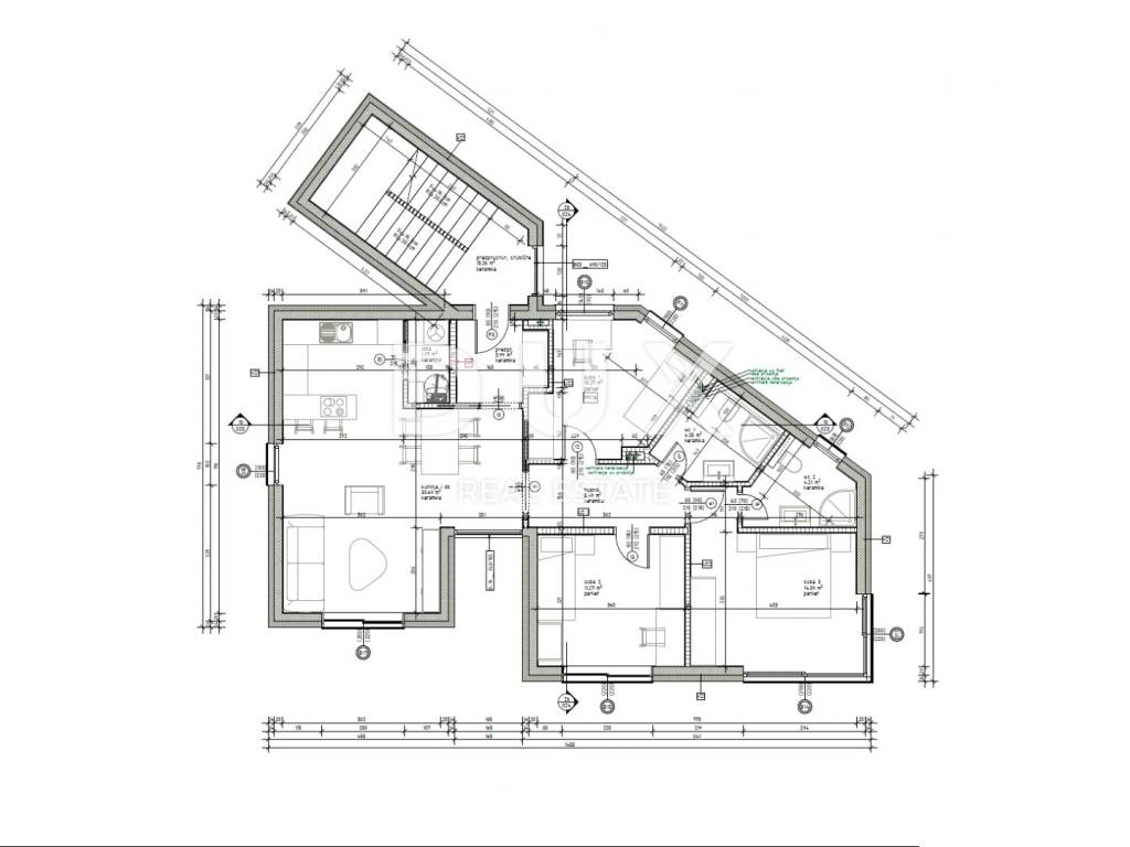
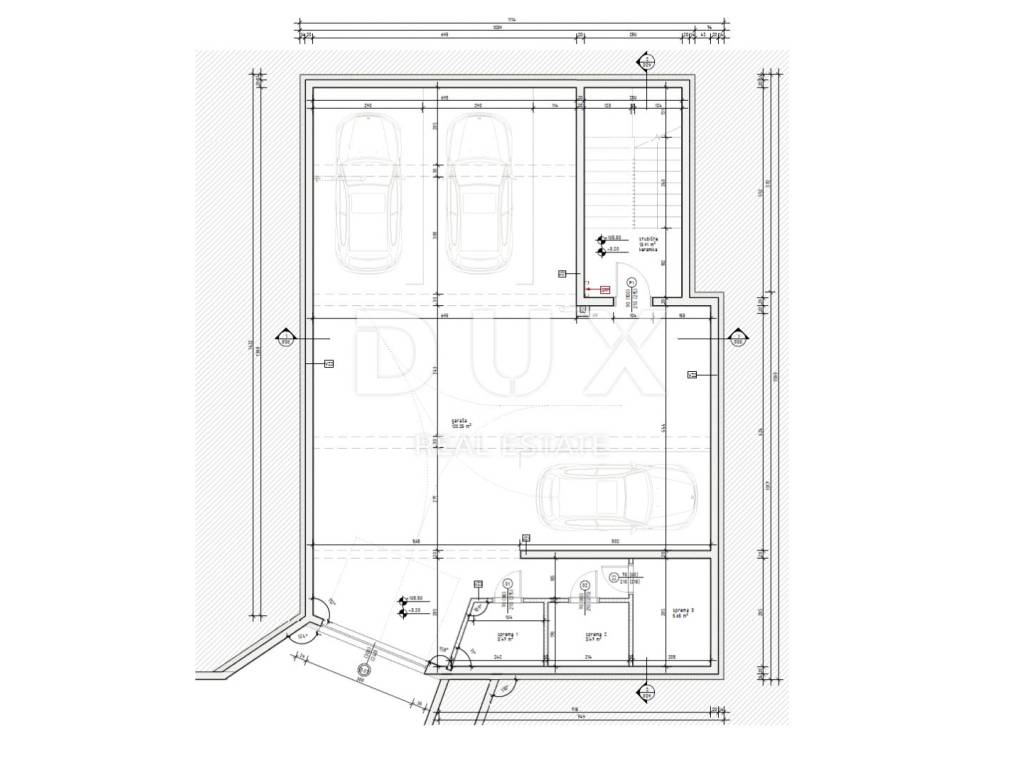
Projektima su predviđene dvije stambene zgrade s po 3 stana, visokog standarda stanovanja, s podzemnim garažama.
Svaki stan ima i vlastiti, ograđeni dio okućnice koju bi budući stanari kupili zajedno sa stanom.

Kod projektiranja je postignuto da su svih 6 stanova različiti:
- jedan je jednosobni s dnevnim boravkom (neto 45,79 m2),
- tri su dvosobna s dnevnim boravkom (70,70 m2, 72,39 m2 i 87,32 m2)
- dva trosobna s dnevnim boravkom (138,24 m2 i 89,41 m2). - najveći stan je dvoetažni.

Dvosobni stanovi imaju kupaonu i dodatni WC, manji trosobni dvije kupaone, a veći trosobni dvije kupaone i WC.

Svakom stanu pripada jedno parkirališno mjesto u garaži, a pored toga u jednoj zgradi su na raspolaganju 3 spremišta u garaži, a u drugoj 2 spremišta (sva cca od 3,5 do 5 m2).

Svaki stan će imati pogled na more!

Jedna građevinska dozvola istekla je prošle godine pa je treba ponovno ishodovati.
Ništa se u prostornom planu nije mijenjalo tako da je u pitanju administrativna formalnost.
Druga je građevinska dozvola važeća do srpnja 2024. godine.

S obzirom da su na terenu dvije starine, znatno je smanjen iznos komunalija koje treba platiti za nove zgrade.
Teren već ima dovedenu struju i vodu za oba kućna broja te priključke na kanalizaciju.

Preostao je otkup nekoliko manjih čestica od Općine Matulji (postoji obvezujući zaključak načelnika uz cijenu otkupa od 90 eura/m2) i zatim završno formiranje građevinskih čestica na katastru.
Buduće građevinske čestice imat će 616 i 617 m2 (ukupno 1233 m2).

NEKRETNINA NA LIJEPOJ LOKACIJI S VELIKIM POTENCIJALOM ZA OZBILJNE INVESTITORE!

OPATIJA:
Opatija, predivan obalni grad smješten na Jadranskom moru poznato je turističko odredište za turiste iz cijelog svijeta. Grad je okružen prekrasnom prirodom, u podnožju planine Učka. Iz nekretnina u Opatiji pruža se neprocjenjivi pogled na more i okolne otoke Krk i Cres. Opatija je okružena šarmantnim malenim gradovima s starim kućama smještenim u uskim uličicama bogate povijesti. Ulice grada Opatije čine nekretnine koje se ističu specifičnom arhitekturom te vilama koje datiraju iz habsburškog perioda. Veliki izbor plaža, kristalno čistog mora i raznovrsne turističke usluge ključni su faktori zbog kojih je Opatija svršena turistička destinacija prepoznata od strane susjednih zemalja kao odličan investicijski izbor. Cijene nekretnina na ovom području rastu, popunjenost iznajmljivanja je izvrsna što je uzrokovalo povrat investicije od 5% do 10% i privlačenje inozemnih ulagača.

Poštovani klijenti, agencijska provizija naplaćuje se u skladu s Općim uvjetima poslovanja:
www.dux-nekretnine.hr/opci-uvjeti-poslovanja

Poštovani potencijalni kupci, najmoprimci i zakupoprimci,
razgledavanje nekretnine koja vas zanima i za koju imate interes moguće je jedino i isključivo uz potpis Ugovora o posredovanju nekretnina, i to u svrhu zaštite vlasnika nekretnine od posjeta neregistriranih osoba, a i u skladu sa Zakonom o zaštiti podataka i Zakonom o posredovanju u prometu nekretnina.
Pri razgledavanju svake nekretnine potencijalni kupac/najmoprimatelj/ zakupoprimac je obavezan ispuniti i potpisati Ugovor o posredovanju nekkretnina u kojem je navedeno sljedeće:
- osnovni podaci o potencijalnom kupcu/najmoprimatelju/ zakupoprimacu
- osnovni podaci o agenciji
- iznos agencijske provizije
Agencijska provizija za kupca iznosi 3% (+25% PDV) od ukupno dogovorene kupoprodajne cijene.
Agencijska provizija za najmoprimca/zakupnika iznosi jednu mjesečnu najamninu/zakupninu (+ 25% PDV).

ID KOD AGENCIJE: 26550

Patrik Hrštić
Agent s licencom
Mob: +385 91 270 3979
Tel: +385 91 480 8808
E-mail: patrik@dux-nekretnine.hr
www.dux-opatija.com

Rene Nemarnik
Agent s licencom
Mob: +385 91 737 5328
Tel: +385 91 480 8808
E-mail: rene@dux-nekretnine.hr
www.dux-nekretnine.hr
Se quiser saber mais, pode falar com Patrik Hrštić.
Características
Contrato
Venda
Tipologia
Terreno para construção
Superfície
1.000 m²
Informações de preço
Preço
€ 280.000
Preço por m²
280 €/m²
Descubra cada canto da propriedade
+23
Opções adicionais

Contactar o anunciante

Ou