Vivenda familiar 93 m², Svetvinčenat

€ 95.000
1
93 m²

Nota

Anúncio atualizado em 04/02/2026
Descrição

This description has been translated automatically and may not be accurate

referência: 18893

ISTRIA, SVETVINČENAT - Stone house with building permit for renovation

The Renaissance town of Svetvinčenat is one of Istria's jewels with a rich tourist offer and numerous events that take place in the extraordinarily attractive historical spaces of this town. The symbol of the place itself and one of the most important fortifications of the Venetian army of that time in Istria is the Renaissance square of Placa with the Morosini-Grimani castle. This special town has a rich tradition, interesting and varied programs, the most prominent of which are the Medieval Festival, the Cheese Festival and the Dance and Non-Verbal Theater Festival, which attract many visitors every year.

In this beautiful town with a rich cultural heritage, a ruin for adaptation is for sale in an excellent location with a valid building permit and paid utilities.
The floor plan of the stone house is 60m2, while the garden extends to 111m2.
A building permit for renovation was obtained for the above-mentioned antique.
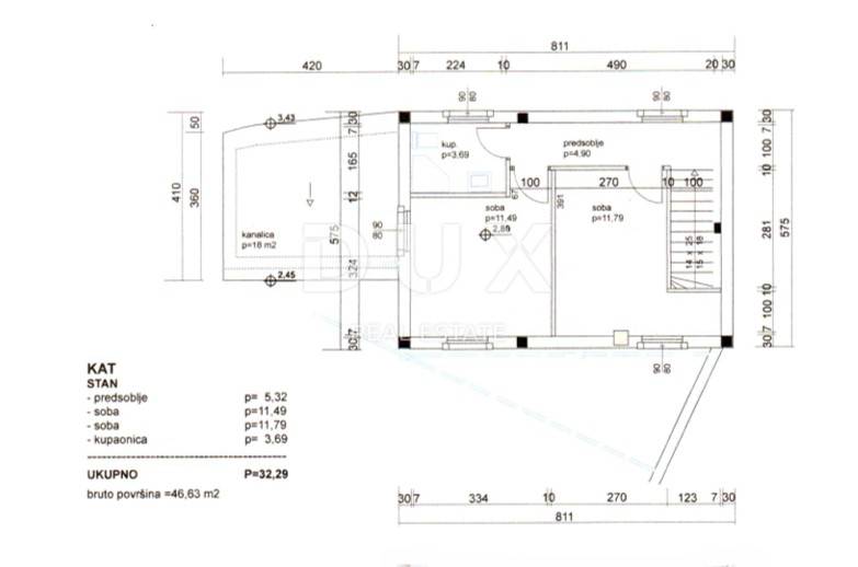
The project is a planned house with ground floor + first floor with a total gross area of 93.83m2.
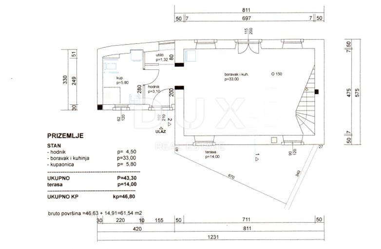
On the ground floor, a kitchen with a dining area, an open-concept living room and a bathroom are planned. Total gross area 61.54m2
There are two bedrooms with an entrance hall and a bathroom on the first floor. Total gross area 32.29m2.
The access road is paved.

Ownership 1/1.

The location of the property is very favorable, located in the heart of Istria, and the coast is only half an hour's drive away.

The property is definitely worth your attention, suitable as an investment for a nice family life or for tourist rental.

Dear clients, the agency commission is charged in accordance with the General Terms and Conditions:
www.dux-nekretnine.hr/opci-uvjeti-poslovanja

ID CODE: 18893

Lara Jović
Agent s licencom
Mob: +385 91 199 8034
Tel: +385 91 480 8808
E-mail: lara@dux-istra.com
www.dux-nekretnine.hr
Se quiser saber mais, pode falar com Lara Jović.
Características
Tipologia
Vivenda familiar
Contrato
Venda
Andar
1
Superfície
93 m² | comercial 204 m²
Quartos
1
Varanda
Não
Terraço
Não
Detalhe da superfície

Habitação

Andar
1
Superfície
93,0 m²
Coeficiente
100%
Tipo de superfície
Principal
Sup comercial
93,0 m²

Terreno

Andar
Rés-do-chão
Superfície
111,0 m²
Coeficiente
100%
Tipo de superfície
Acessórios
Sup comercial
111,0 m²
Informações de preço
Preço
€ 95.000
Preço por m²
466 €/m²
Eficiência energética
  • Certificação energética

    Livre
Descubra cada canto da propriedade
+5
Opções adicionais

Contactar o anunciante

Ou