Vivenda familiar 175 m², nova, Malinska-Dubašnica

€ 698.000
5
175 m²
3+
Sim
Varanda
Terraço

Nota

Anúncio atualizado em 01/05/2026
Descrição

This description has been translated automatically and may not be accurate

referência: k-363

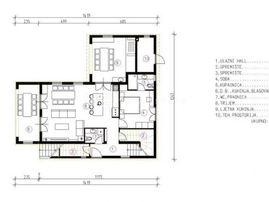
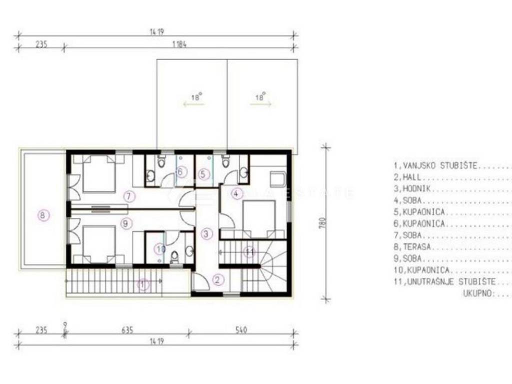
Real estate on the island of Krk, Malinska area - for sale is a new villa designed in an authentic coastal style in a quiet rural location in the immediate vicinity of Malinska. The villa's living area of 175.45 m2 is distributed over the ground floor and first floor. The ground floor has an entrance hall, two storage rooms, a technical room, a summer kitchen, a bedroom, a bathroom, a toilet with a laundry room and a spacious living room with a kitchen and dining room with access to a covered porch. Internal and external stairs lead to the first floor, which has a hallway, three bedrooms, three bathrooms and a balcony overlooking the surrounding greenery. On the beautifully landscaped and greened garden of 561 m2 there is a swimming pool with a sunbathing area and parking for two cars. High-quality construction and equipment, multi-split air conditioning, underfloor heating, top-quality joinery, floor coverings and sanitary equipment. The location where it is located is surrounded by greenery and peace, and at the same time it is close enough to the sea and beautiful beaches and the center of Malinska. The property is currently in the final stages of construction, with completion and move-in scheduled for summer 2026.
Vala Estate Malinska agency will provide you with a safe and transparent transfer of ownership and all necessary documentation.

ID CODE: k-363

VALA ESTATE d.o.o.
Mob: +385 99 444 0550
Tel: +385 51 568 917
E-mail: info@vala-estate.com
www.vala-estate.com
Características
Tipologia
Vivenda familiar
Contrato
Venda
Andar
1
Elevador
Sim
Superfície
175 m² | comercial 736 m²
Quartos
5
Quartos
4
Casas de banho
3+
Varanda
Sim
Terraço
Sim
Outras características
  • Porta blindada
  • Piscina
Detalhe da superfície

Habitação

Andar
1
Superfície
175,0 m²
Coeficiente
100%
Tipo de superfície
Principal
Sup comercial
175,0 m²

Terreno

Andar
Rés-do-chão
Superfície
561,0 m²
Coeficiente
100%
Tipo de superfície
Acessórios
Sup comercial
561,0 m²
Informações de preço
Preço
€ 698.000
Preço por m²
948 €/m²
Eficiência energética
  • Ano de construção

    2026
  • Estado

    Novo / Em construção
  • Certificação energética

    Livre
Descubra cada canto da propriedade
+23
Opções adicionais

Contactar o anunciante

Ou