1/18


Apartamento T3 novo, segundo andar, Okrug
Okrug€ 350.000
Anúncio atualizado em 18/11/2025
Descrição
referência: ST4522
ID CODE: ST4522
Josipa Vrcić
Asistent u posredovanju
Mob: 095/901-4869
Tel: 022/646-360, 022/646-361
E-mail: josipa.vrcic@dogma-nekretnine.com
www.dogma-dalmacija.com
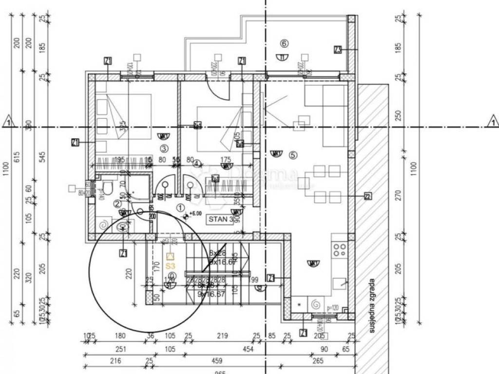
Características
- Tipologia
- Apartamento
- Contrato
- Venda
- Andar
- 2 andar
- Superfície
- 61 m²
- Quartos
- 3
- Quartos
- 2
- Casas de banho
- 1
- Varanda
- Não
- Terraço
- Sim
Informações de preço
- Preço
- € 350.000
- Preço por m²
- 5.738 €/m²
Eficiência energética
Ano de construção
2025Estado
Novo / Em construçãoCertificação energética
Livre
Descubra cada canto da propriedade
Opções adicionais