map icon

Apartamento T4 novo, segundo andar, Voštarnica - Poluotok, Zadar

ZadarVoštarnica - Poluotok
€ 560.000
4
127 m²
2
2

Nota

Anúncio atualizado em 18/11/2025
Descrição

This description has been translated automatically and may not be accurate

referência: DA100065695

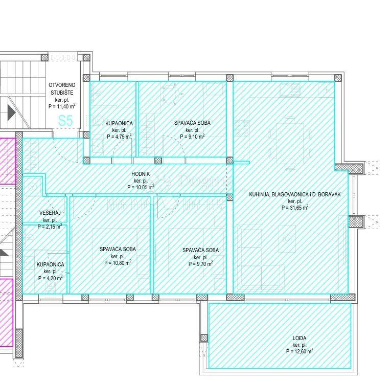
DIKLO (ZADAR) APARTMENT S5 2nd FLOOR WITH SEA VIEW, ROOFTOP TERRACE 102.35m

Quiet location near the beach. All apartments have a sea view.

Apartment S5 is located on the second floor of a smaller residential building with a total of 6 residential units.

It consists of a hallway, kitchen, dining and living room, three bedrooms, a laundry room, and two bathrooms. The apartment has a large loggia of 12.60m, a storage room of 8.80m, and two parking spaces. The apartment also includes a spacious rooftop terrace of 102.35m with a panoramic sea view.

Interior living area: 82.40m. Total gross area including all annexes: 233.65m, i.e. 127.34 net saleable area.

Financing available for EU citizens.
The number one real estate agency in Croatia for 25 years.

For more information:
Vedrana Bašić +385919077396
E-mail: vedrana.basic@dogma-nekretnine.com

ID CODE: DA100065695

Vedrana Bašić
Asistent u posredovanju
Mob: 091/907-7396
Tel: 023/551-400
E-mail: vedrana.basic@dogma-nekretnine.com
www.dogma-nekretnine.com
Se quiser saber mais, pode falar com Vedrana Bašić .
Características
Tipologia
Apartamento
Contrato
Venda
Andar
2 andar
Superfície
127 m²
Quartos
4
Quartos
3
Casas de banho
2
Varanda
Não
Terraço
Não
Informações de preço
Preço
€ 560.000
Preço por m²
4.409 €/m²
Eficiência energética
  • Estado

    Novo / Em construção
  • Certificação energética

    Livre
Descubra cada canto da propriedade
+14
Opções adicionais

Contactar o anunciante

Ou