1/19


Apartamento T3 novo, rés-do-chão, Primošten
€ 260.000
Anúncio atualizado em 11/12/2025
Descrição
referência: DA100065511
ID CODE: DA100065511
Siniša Klem
Agent s licencom
Mob: 095/399-4450
Tel: 022/646-360, 022/646-361
E-mail: sinisa.klem@dogma-nekretnine.com
www.dogma-dalmacija.com
Características
- Tipologia
- Apartamento
- Contrato
- Venda
- Andar
- Rés-do-chão
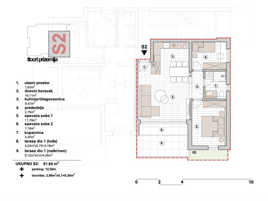
- Superfície
- 66 m²
- Quartos
- 3
- Quartos
- 2
- Casas de banho
- 1
- Varanda
- Não
- Terraço
- Não
Informações de preço
- Preço
- € 260.000
- Preço por m²
- 3.939 €/m²
Eficiência energética
Estado
Novo / Em construçãoCertificação energética
Livre
Descubra cada canto da propriedade
Opções adicionais