Apartamento T2 primeiro andar, Centar, Luka, Finida, Umag

€ 239.240
2
40 m²
1
1
Sim
Varanda

Nota

Anúncio atualizado em 04/05/2026
Descrição

This description has been translated automatically and may not be accurate

referência: IS1517702

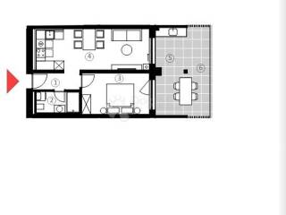
A modern apartment for sale, located in a high-quality new development in Umag, comprising a total of 57 residential units. The building is equipped with an elevator, further enhancing everyday comfort.

APP 110

The apartment has a net usable area of 40,24 m, along with a balcony of 21,18 m perfect for enjoying your morning coffee or relaxing in the evening.

Air conditioning is installed in all rooms for heating and cooling, while the bathroom features electric underfloor heating for extra comfort.

The apartments are equipped with:

- aluminum joinery with triple-glazed windows

- electric blinds and mosquito nets

- video intercom

The price includes a garage parking space and a private storage room in the basement.

The sale is conducted on a "turnkey" basis, meaning the apartment is delivered fully completed (without furniture), with finished floors, bathroom, and all installations ready for move-in.

Planned completion: June 2026.

Note: The seller is a legal entity, so the buyer does not pay real estate transfer tax.

ID CODE: IS1517702

Dogma Poreč
Mob: 091/361-1922
Tel: +385 52 771 458
E-mail: info@dogma-nekretnine.com
www.dogma-nekretnine.com
Características
Tipologia
Apartamento
Contrato
Venda
Andar
1 andar
Elevador
Sim
Superfície
40 m²
Quartos
2
Quartos
1
Casas de banho
1
Varanda
Sim
Terraço
Não
Estacionamento, lugares de estacionamento
1 em garagem
Ar condicionado
Ar condicionado, frio/quente
Informações de preço
Preço
€ 239.240
Preço por m²
5.981 €/m²
Eficiência energética
  • Ano de construção

    2026
  • Ar condicionado

    Ar condicionado, frio/quente
  • Certificação energética

    Livre
Descubra cada canto da propriedade
+20
Opções adicionais

Contactar o anunciante

Ou