1/9


Apartamento T3 novo, rés-do-chão, Žitnjak, Zagreb
€ 211.990
Anúncio atualizado em 08/01/2026
Descrição
referência: ZG73527
ID CODE: ZG73527
Roko Igor Rajčić
Asistent u posredovanju
Mob: 099/207-4330
Tel: 01/211-0039
E-mail: roko.igor.rajcic@dogma-nekretnine.com
www.dogma-zagreb.com
Características
- Tipologia
- Apartamento
- Contrato
- Venda
- Andar
- 1
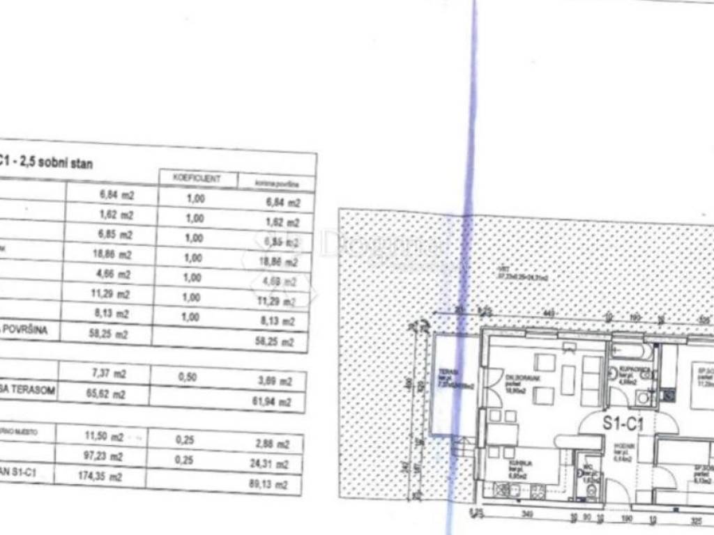
- Superfície
- 58 m² | comercial 155 m²
- Quartos
- 3
- Quartos
- 3
- Casas de banho
- 1
- Varanda
- Não
- Terraço
- Não
Detalhe da superfície
Habitação
- Andar
- 1
- Superfície
- 58,0 m²
- Coeficiente
- 100%
- Tipo de superfície
- Principal
- Sup comercial
- 58,0 m²
Terreno
- Andar
- Rés-do-chão
- Superfície
- 97,0 m²
- Coeficiente
- 100%
- Tipo de superfície
- Acessórios
- Sup comercial
- 97,0 m²
Informações de preço
- Preço
- € 211.990
- Preço por m²
- 1.368 €/m²
Eficiência energética
Ano de construção
2008Estado
Novo / Em construçãoCertificação energética
Livre
Descubra cada canto da propriedade
Opções adicionais