map icon

Apartamento T3 novo, sótão, Okrug

Okrug
€ 450.000
3
87 m²
1
1
Terraço

Nota

Anúncio atualizado em 18/11/2025
Descrição

This description has been translated automatically and may not be accurate

referência: ST3519

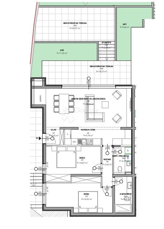
A high-quality two-bedroom apartment in a newly built residential building, located in a peaceful part of Čiovo Island, Okrug Donji, just 80 meters from the beach.

The new building consists of a basement, ground floor, and one upper floor. The apartment in the basement includes two spacious bedrooms, an open-space living room with a kitchen and dining area, a modern bathroom with underfloor heating, and an additional WC with a laundry area.

The outdoor space features two landscaped gardens and two spacious terraces, one of which is partially covered and has a designated barbecue area.

The total indoor living area is 87.36 m, while the outdoor space covers 64.85 m.

The apartment will be equipped with a video surveillance system, and the price includes an outdoor parking space. For additional privacy, a remote-controlled ramp is planned.

Construction is scheduled to begin in autumn 2025.

Completion of works is expected in 2026.

Property viewings are possible only with a previously signed brokerage agreement, in accordance with the Real Estate Transactions Act.

For more information and to arrange a viewing, please feel free to contact us.

ID CODE: ST3519

Dora Radujko
Agent s licencom
Mob: 091/956-5822
Tel: +385 21 293 201
E-mail: dora.radujko@dogma-nekretnine.com
www.dogma-dalmacija.com
Se quiser saber mais, pode falar com Dora Radujko.
Características
Tipologia
Apartamento
Contrato
Venda
Andar
1
Superfície
87 m² | comercial 151 m²
Quartos
3
Quartos
2
Casas de banho
1
Varanda
Não
Terraço
Sim
Detalhe da superfície

Habitação

Andar
1
Superfície
87,0 m²
Coeficiente
100%
Tipo de superfície
Principal
Sup comercial
87,0 m²

Terreno

Andar
Rés-do-chão
Superfície
64,0 m²
Coeficiente
100%
Tipo de superfície
Acessórios
Sup comercial
64,0 m²
Informações de preço
Preço
€ 450.000
Preço por m²
2.980 €/m²
Eficiência energética
  • Ano de construção

    2026
  • Estado

    Novo / Em construção
  • Certificação energética

    Livre
Descubra cada canto da propriedade
+4
Opções adicionais

Contactar o anunciante

Ou