1/7


Vivenda familiar 137 m², nova, Dobrinj
Dobrinj€ 160.000
Anúncio atualizado em 18/11/2025
Descrição
referência: 15640
ID CODE: 15640
Lida Orlić
Agent s licencom
Mob: 098/980-2954
Tel: +385 51 341 080
E-mail: lida.orlic@dogma-nekretnine.com
www.dogma-nekretnine.com
Marina Polonijo
Agent s licencom
Mob: 098/329-462
Tel: 051/309-092
E-mail: marina.polonijo@dogma-nekretnine.com
www.dogma-nekretnine.com
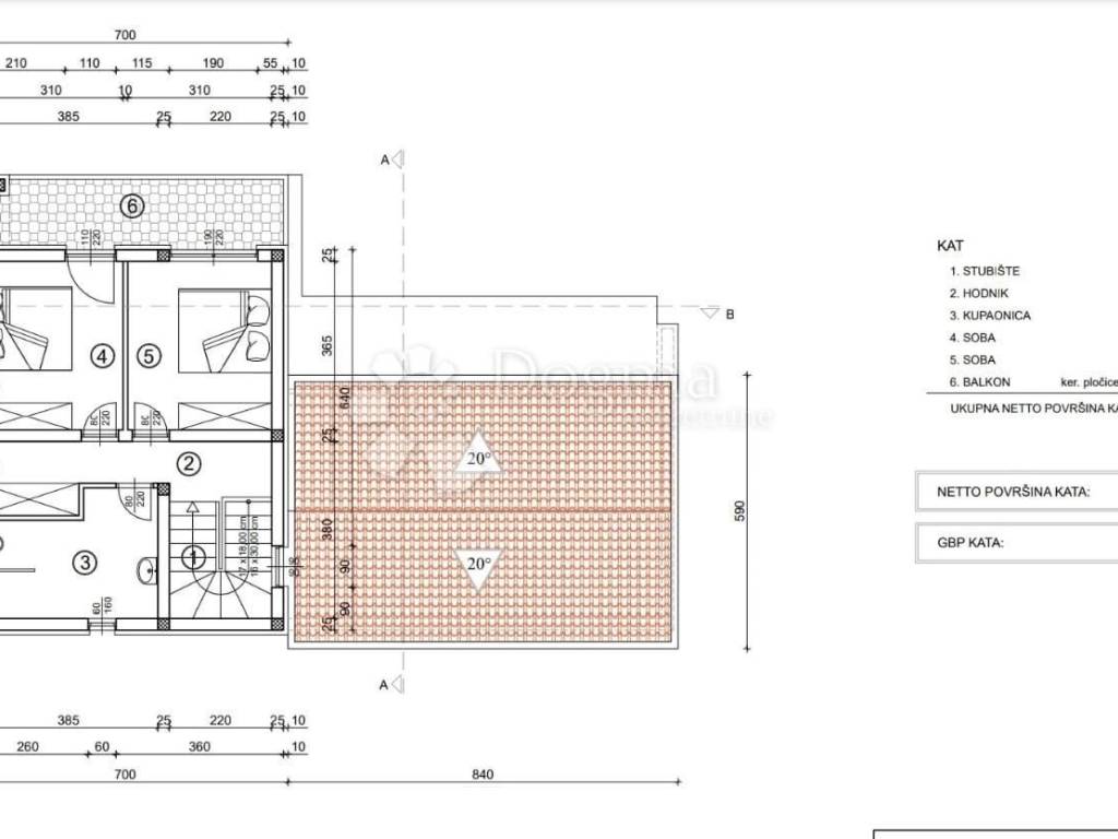
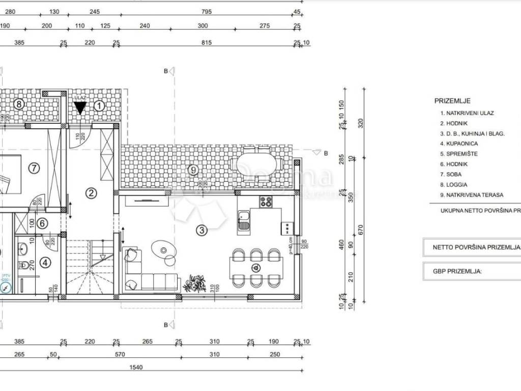
Características
- Tipologia
- Vivenda familiar
- Contrato
- Venda
- Andar
- 1
- Superfície
- 137 m² | comercial 777 m²
- Quartos
- 5+
- Quartos
- 3
- Casas de banho
- 2
- Varanda
- Não
- Terraço
- Não
Outras características
Detalhe da superfície
Habitação
- Andar
- 1
- Superfície
- 137,0 m²
- Coeficiente
- 100%
- Tipo de superfície
- Principal
- Sup comercial
- 137,0 m²
Terreno
- Andar
- Rés-do-chão
- Superfície
- 640,0 m²
- Coeficiente
- 100%
- Tipo de superfície
- Acessórios
- Sup comercial
- 640,0 m²
Informações de preço
- Preço
- € 160.000
- Preço por m²
- 206 €/m²
Eficiência energética
Ano de construção
2022Estado
Novo / Em construçãoCertificação energética
Livre
Descubra cada canto da propriedade
Opções adicionais