Apartamento T2 novo, segundo andar, Centar, Luka, Finida, Umag

€ 215.000
2
56 m²
1
2
Sim
Terraço

Nota

Anúncio atualizado em 06/04/2026
Descrição

This description has been translated automatically and may not be accurate

referência: IS1512650

Istria, Umag

(Apartment 2-17)

In the northwest of the Istrian peninsula, in the city of Umag. we offer modern apartments under construction.
Umag has been an attractive destination for many years, known since ancient times as a summer residence, and today it is also known for its rich content throughout the year. The city has been declared the European City of Sports and hosts various events, concerts, shows and exhibitions.

The new building is located in the immediate vicinity of shops, kindergartens, schools and within walking distance of the beaches. It consists of four entrances with a total of 122 apartments of various sizes. The apartments are connected vertically by elevators and stairs. The ground-floor apartments come with an attached garden . extra comfort. This project is ideal for young families and those looking for peace and rest.
The expected completion of construction is June 30, 2025.

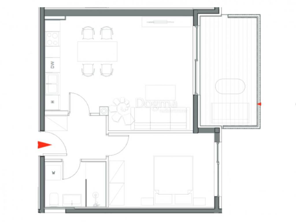
The apartment has a total square footage of 56,05 sqm, is located on the second floor of the building.
It consists of an entrance hall, a bathroom, a bedroom, and a spacious living room with kitchen and dining room.
The living room has access to a balcony of 10,01 sqm.
The apartment also has a storage room of 3,08 sqm, 1 outdoor covered parking space and a garage.
The total square footage you are buying is 71,63 sqm.

Technical characteristics:
-reinforced concrete monolithic construction
-partition walls made of double-thick plasterboard lining (W112) with additional heat and sound insulation
-facade cladding-ETICS system, thermal insulation 10 cm thick
- joinery, high-quality multi-chamber PVC profile system, lifting and sliding balcony walls
- Electric blinds are installed in the rooms, while there are none in the living room
- heating and cooling system through a multisplit air conditioning system (outdoor units are not visually exposed, roof, garage, ground floor), air conditioning unit in every room
-each apartment has its own water and electricity meter
-telephone, antenna TV, internet connection, video intercom
- first-class large-format ceramics (hallway and bathrooms)
-first-class parquet in all rooms

The subject is in the VAT system.
THE BUYER DOES NOT PAY 3% REAL ESTATE SALES TAX.
Payment of 15% per pre-contract.

ID CODE: IS1512650

Igor Nazarević
Agent s licencom
Mob: 098/904-8333
Tel: 052/639-390
E-mail: igor.nazarevic@dogma-nekretnine.com
www.dogma-nekretnine.com

Dogma Umag
Tel: +385 52 639 390
E-mail: info@dogma-nekretnine.com
www.dogma-nekretnine.com
Se quiser saber mais, pode falar com Igor Nazarević.
Características
Tipologia
Apartamento
Contrato
Venda
Andar
2 andar
Elevador
Sim
Superfície
56 m²
Quartos
2
Quartos
1
Casas de banho
1
Varanda
Não
Terraço
Sim
Estacionamento, lugares de estacionamento
1 em garagem
Ar condicionado
Ar condicionado, frio/quente
Informações de preço
Preço
€ 215.000
Preço por m²
3.839 €/m²
Eficiência energética
  • Ano de construção

    2025
  • Estado

    Novo / Em construção
  • Ar condicionado

    Ar condicionado, frio/quente
  • Certificação energética

    Livre
Descubra cada canto da propriedade
+2
Opções adicionais

Contactar o anunciante

Ou