Apartamento T3 novo, segundo andar, Nin

€ 285.000
3
83 m²
1
2
Terraço

Nota

Anúncio atualizado em 19/11/2025
Descrição

This description has been translated automatically and may not be accurate

referência: DA100062566

EXCELLENT OPPORTUNITY MODERN PENTHOUSE S9 ON THE SECOND FLOOR WITH A ROOFTOP TERRACE AND SEA VIEW

Discover the perfect blend of comfort and elegance in this stunning apartment located on the ground floor of a modern residential building with a sea view.
The building will have ten residential units and is oriented northeast, ensuring optimal light and comfort.

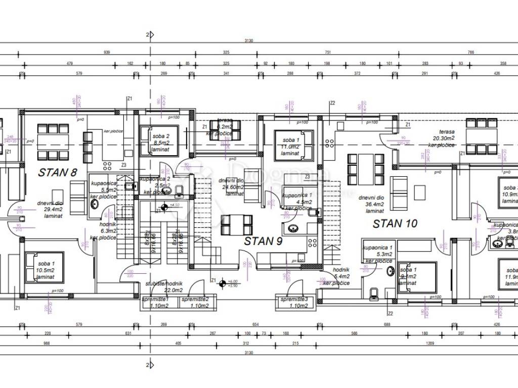
Penthouse S9 offers a total net sales area of 83.36 m, while the gross area is 152.45 m.

The interior living space of 56.7 m includes a kitchen and living room, two bedrooms, and a bathroom. Additionally, the apartment comes with a covered terrace of 6.20 m, a storage room of 1.10 m, one parking space, and a spacious rooftop terrace of 75.49 m.

The building is modernly designed, using high-quality materials for top-notch durability and comfort. It is conveniently located near all essential amenities for a comfortable lifestyle.

Construction starts on February 15, 2024, with completion planned for April 30, 2025.

Nin, a popular tourist destination known for its sandy beaches, offers everything needed for a comfortable life. Excellent transport connections allow quick access to Zadar (16 km away), Zadar Airport (29 km away), and the highway (29 km away).

Don't miss the chance to own this exceptional apartment! For more information or to arrange a viewing, feel free to contact me.

Contact:
Vedrana Bašić
+385 91 907 7396
vedrana.basic@dogma-nekretnine.com

ID CODE: DA100062566

Vedrana Bašić
Asistent u posredovanju
Mob: 091/907-7396
Tel: 023/551-400
E-mail: vedrana.basic@dogma-nekretnine.com
www.dogma-nekretnine.com
Se quiser saber mais, pode falar com Vedrana Bašić .
Características
Tipologia
Apartamento
Contrato
Venda
Andar
2 andar
Superfície
83 m²
Quartos
3
Quartos
2
Casas de banho
1
Varanda
Não
Terraço
Sim
Informações de preço
Preço
€ 285.000
Preço por m²
3.434 €/m²
Eficiência energética
  • Estado

    Novo / Em construção
  • Certificação energética

    Livre
Descubra cada canto da propriedade
+12
Opções adicionais

Contactar o anunciante

Ou