1/15


Vivenda familiar 344 m², Rab
€ 1
5+
344 m²
3+
Sim
Varanda
Terraço
Anúncio atualizado em 19/11/2025
Descrição
referência: RAB150
ID CODE: RAB150
Damjan Dumić - Otok Rab
Asistent u posredovanju
Mob: 091/736-7518
Tel: 051 564 890
E-mail: damjan.dumic@dogma-nekretnine.com
www.dogma-nekretnine.com
Características
- Tipologia
- Vivenda familiar
- Contrato
- Venda
- Andar
- 1
- Elevador
- Sim
- Superfície
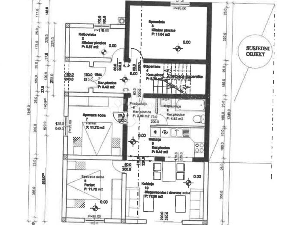
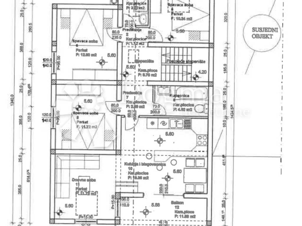
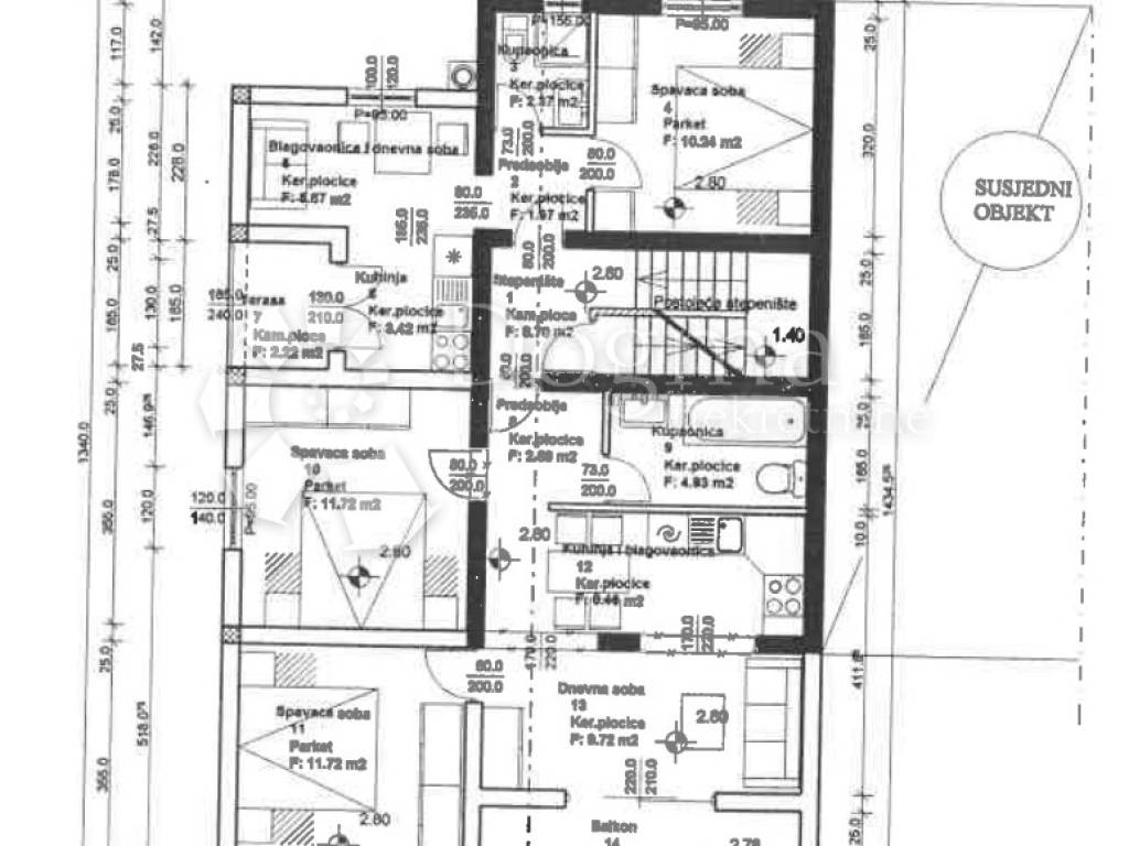
- 344 m² | comercial 633 m²
- Quartos
- 5+
- Quartos
- 7
- Casas de banho
- 3+
- Varanda
- Sim
- Terraço
- Sim
Detalhe da superfície
Habitação
- Andar
- 1
- Superfície
- 344,0 m²
- Coeficiente
- 100%
- Tipo de superfície
- Principal
- Sup comercial
- 344,0 m²
Terreno
- Andar
- Rés-do-chão
- Superfície
- 289,0 m²
- Coeficiente
- 100%
- Tipo de superfície
- Acessórios
- Sup comercial
- 289,0 m²
Informações de preço
- Preço
- € 1
- Preço por m²
- 0 €/m²
Eficiência energética
Ano de construção
1967Certificação energética
Livre
Descubra cada canto da propriedade
Opções adicionais