Apartamento T4 novo, terceiro andar, Seget

€ 400.000
4
112 m²
2
3
Sim
Varanda
Terraço

Nota

Anúncio atualizado em 19/11/2025
Descrição

This description has been translated automatically and may not be accurate

referência: ST1414

Proudly, we present this exceptional opportunity - beautiful newly built apartments in Seget, situated in an excellent location with unobstructed sea views and daily sunsets as your backdrop. This new residential community offers comfort, quality, and a Mediterranean lifestyle.

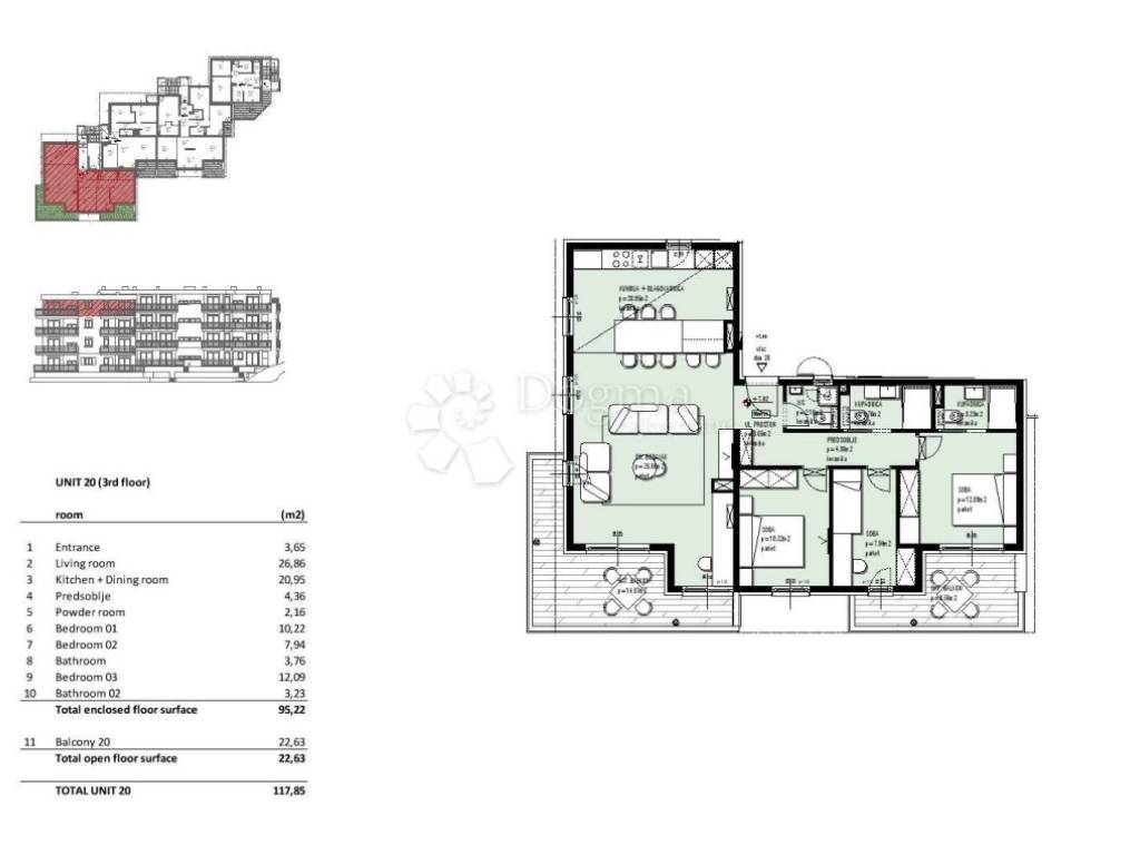
The total net calculable floor area of the apartment is 112,54 square meters. It consists of an entrance hall, a spacious living room with a kitchen and dining area, three bedrooms, two bathrooms, and a guest toilet. This penthouse boasts two spacious terraces with unobstructed sea views - an ideal place for relaxation.

Two outdoor parking spaces are included in the apartment's price. The apartment is south-facing, ensuring ample natural light throughout the day and an exceptional view of the bay and the sea.

The apartments will be delivered turnkey, using high-quality equipment and materials. They will be equipped with anti-burglary entrance doors for your security, triple-glazed windows for energy efficiency, and underfloor heating in the bathrooms for added comfort.

The apartments are located just 500 meters as the crow flies from the beautiful Adriatic Sea. Construction is already in full swing, and buyers will be able to see the outlines of the apartments on the construction site. The completion of the work is planned for mid-2024.

Seget has a long tourism tradition and is located only 2 kilometers west of the UNESCO town of Trogir. This area offers a mild climate, rich history, and a tradition of agriculture and fishing. The Seget Riviera offers beautiful, clean sandy beaches, diverse accommodation options, sports and recreational facilities, ensuring an unforgettable vacation.

The distance from Split is 32 kilometers, from Trogir 2 kilometers, and only 6 kilometers from the airport.

This is an opportunity to become the owner of an apartment in a peaceful Mediterranean environment with a beautiful sea view. Don't miss this chance to realize your dreams of living along the Adriatic Sea coast.

For additional information and to arrange a viewing, please feel free to contact us:

Deloris Lušić
+385 91 726 2655
deloris.lusic@dogma-nekretnine.com

Dora Radujko
+385 91 956 5822
dora.radujko@dogma-nekretnine.com

ID CODE: ST1414

Dora Radujko
Agent s licencom
Mob: 091/956-5822
Tel: +385 21 293 201
E-mail: dora.radujko@dogma-nekretnine.com
www.dogma-dalmacija.com
Se quiser saber mais, pode falar com Dora Radujko.
Características
Tipologia
Apartamento
Contrato
Venda
Andar
3 andar
Elevador
Sim
Superfície
112 m²
Quartos
4
Quartos
3
Casas de banho
2
Varanda
Sim
Terraço
Sim
Informações de preço
Preço
€ 400.000
Preço por m²
3.571 €/m²
Eficiência energética
  • Ano de construção

    2023
  • Estado

    Novo / Em construção
  • Certificação energética

    Livre
Descubra cada canto da propriedade
+6
Opções adicionais

Contactar o anunciante

Ou