1/13


Apartamento T3 novo, segundo andar, Primošten
€ 316.000
Anúncio atualizado em 19/11/2025
Descrição
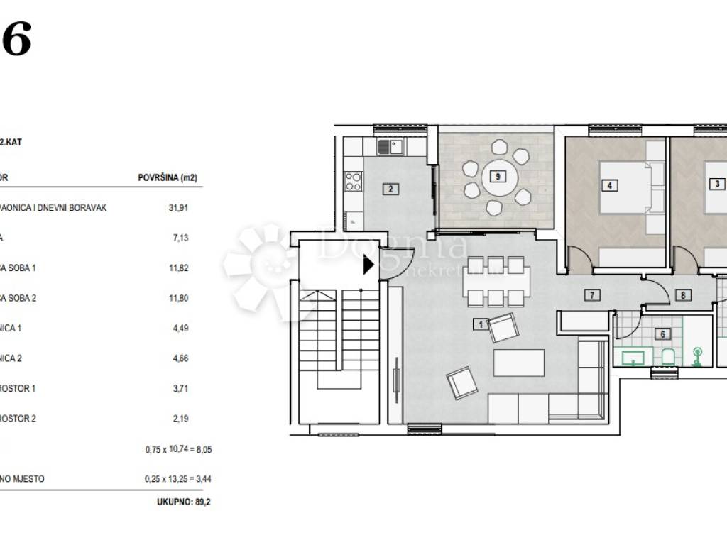
referência: DA1455
ID CODE: DA1455
Ante Goleš
Agent s licencom
Mob: 099/222-3054
Tel: 022/646-360, 022/646-361
E-mail: ante.goles@dogma-nekretnine.com
www.dogma-dalmacija.com
Características
- Tipologia
- Apartamento
- Contrato
- Venda
- Andar
- 2 andar
- Superfície
- 85 m²
- Quartos
- 3
- Quartos
- 2
- Casas de banho
- 2
- Varanda
- Não
- Terraço
- Sim
Informações de preço
- Preço
- € 316.000
- Preço por m²
- 3.718 €/m²
Eficiência energética
Estado
Novo / Em construçãoCertificação energética
Livre
Descubra cada canto da propriedade
Opções adicionais