1/15


Apartamento T3 novo, segundo andar, Trogir
€ 273.000
Anúncio atualizado em 19/11/2025
Descrição
referência: ST219
ID CODE: ST219
Ante Goleš
Agent s licencom
Mob: 099/222-3054
Tel: 022/646-360, 022/646-361
E-mail: ante.goles@dogma-nekretnine.com
www.dogma-dalmacija.com
Características
- Tipologia
- Apartamento
- Contrato
- Venda
- Andar
- 2 andar
- Elevador
- Sim
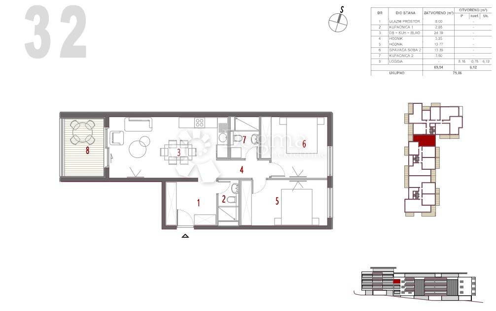
- Superfície
- 75 m²
- Quartos
- 3
- Quartos
- 2
- Casas de banho
- 2
- Varanda
- Sim
- Terraço
- Não
- Estacionamento, lugares de estacionamento
- 1 em garagem
- Ar condicionado
- Ar condicionado, frio/quente
Informações de preço
- Preço
- € 273.000
- Preço por m²
- 3.640 €/m²
Eficiência energética
Ano de construção
2022Estado
Novo / Em construçãoAr condicionado
Ar condicionado, frio/quenteCertificação energética
Livre
Descubra cada canto da propriedade
Opções adicionais