Vivenda familiar 172 m², nova, Centar, Luka, Finida, Umag

€ 270.000
3
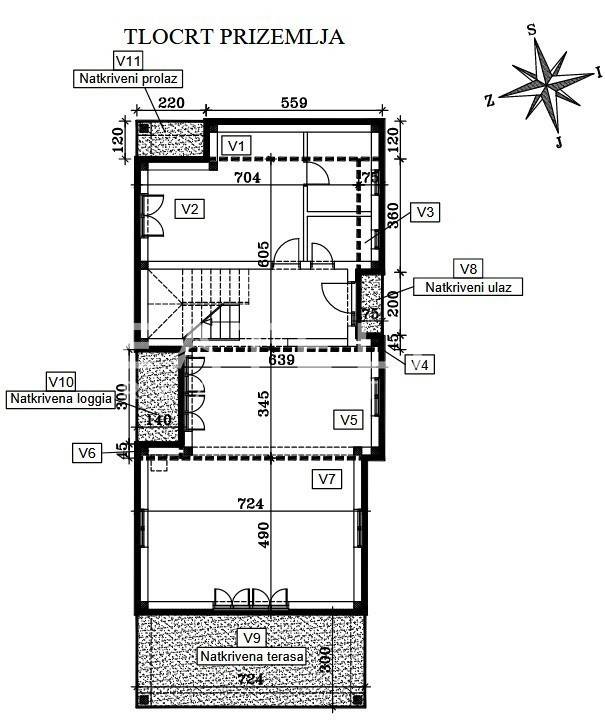
172 m²
3+
Não

Nota

Anúncio atualizado em 23/12/2025
Descrição

This description has been translated automatically and may not be accurate

referência: 120

For sale, a family house under construction (price for Roh-bau state), with a net area of 172 m, located on the outskirts of Umag in an idyllic setting surrounded by greenery, offering an open view of the Alps. The house features 3 bedrooms, each with its own bathroom. It is equipped with utilities (water and electricity connected). The border with Slovenia is just 5 kilometers away. A rare opportunity on the market, excellent investment!
Características
Tipologia
Vivenda familiar
Contrato
Venda
Andar
1
Andares do Edifício
2
Elevador
Não
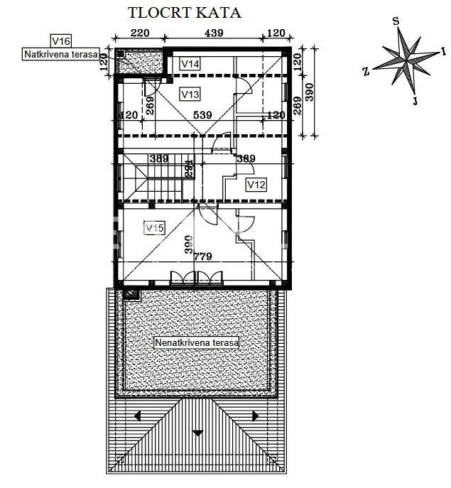
Superfície
172 m² | comercial 842 m²
Quartos
3
Quartos
3
Casas de banho
3+
Mobilado
Não
Ar condicionado
Frio/quente
Detalhe da superfície

Habitação

Andar
1
Superfície
172,0 m²
Coeficiente
100%
Tipo de superfície
Principal
Sup comercial
172,0 m²

Terreno

Andar
Rés-do-chão
Superfície
670,0 m²
Coeficiente
100%
Tipo de superfície
Acessórios
Sup comercial
670,0 m²
Informações de preço
Preço
€ 270.000
Preço por m²
321 €/m²
Eficiência energética
  • Ano de construção

    2025
  • Estado

    Novo / Em construção
  • Ar condicionado

    Frio/quente
  • Certificação energética

    Livre
Descubra cada canto da propriedade
+5
Opções adicionais

Contactar o anunciante

Ou