Vivenda familiar 188 m², nova, Centar - Gulići, Poreč

€ 470.000
5+
188 m²
3+
Não
Cave

Nota

Anúncio atualizado em 02/05/2026
Descrição

This description has been translated automatically and may not be accurate

referência: 1301_1110

K28

NEW HOUSES WITH SWIMMING POOL AROUND POREČ
New family houses with a swimming pool are located in the vicinity of Poreč approx. 11 km from the sea.
4 houses will be built with an attached yard; external approx. 500m2, internal approx. 400m2
The ground floor contains: entrance porch, hall, toilet, storage room, pantry. Open-concept kitchen followed by dining room and living room with exits to a terrace with a canopy and a landscaped yard with a pool (8x4, if desired, the pool can be additionally covered as shown in the pictures in the ad).
Additional storage 7.49m2 on the outside (contains all houses except house D)
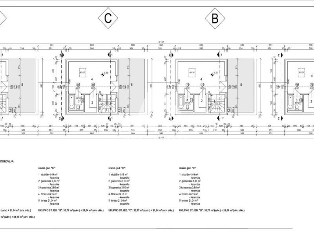
On the 1st floor there is an entrance hall and three bedrooms, one with a loggia, and one with its own bathroom and terrace.
Practically used high attic where there is a dressing room, a bathroom and a room of 24.15 m2 that can be a bedroom and/or a fitness room, a relaxation area, a study room, a playroom and the like. It leads to a large terrace with a view of the landscape, where a jacuzzi can be positioned as desired.
Exterior house A = price: 490,000 + 30,000 FOR THE SWIMMING POOL IF THE BUYER WANTS IT
Internal B and C = price: 470,000 + 30,000 FOR THE POOL IF THE BUYER WANTS IT
-
- Each property has 3 parking spaces
- Underfloor heating with a heat pump is planned
- The possibility of a saltwater swimming pool
- The possibility of covering the pool
- The houses are sold according to the turnkey system

HOUSE B and C surfaces:
Closed area: 151.22 m2
Open space: 37.38m2
TOTAL: 188.6 M2

HOUSE A area:
Closed space: 143.73 m2
Open space: 26.86 m2
TOTAL: 170.59 M2
Características
Tipologia
Vivenda familiar
Contrato
Venda
Andar
1
Andares do Edifício
2
Elevador
Não
Superfície
188 m² | comercial 688 m²
Quartos
5+
Quartos
4
Casas de banho
3+
Mobilado
Não
Estacionamento, lugares de estacionamento
1 em estacionamento compartilhado
Aquecimento
Individualizado, piso radiante
Ar condicionado
Frio/quente
Outras características
  • Piscina
Detalhe da superfície

Habitação

Andar
1
Superfície
188,0 m²
Coeficiente
100%
Tipo de superfície
Principal
Sup comercial
188,0 m²

Terreno

Andar
Rés-do-chão
Superfície
500,0 m²
Coeficiente
100%
Tipo de superfície
Acessórios
Sup comercial
500,0 m²
Informações de preço
Preço
€ 470.000
Preço por m²
683 €/m²
Eficiência energética
  • Ano de construção

    2023
  • Estado

    Novo / Em construção
  • Aquecimento

    Individualizado, piso radiante
  • Ar condicionado

    Frio/quente
Descubra cada canto da propriedade
+45
Opções adicionais

Contactar o anunciante

Ou