Vivenda familiar 240 m², nova, Centar - Gulići, Poreč

€ 750.000
4
240 m²
3+
Não

Nota

Anúncio atualizado em 23/12/2025
Descrição

This description has been translated automatically and may not be accurate

referência: 1421

K53
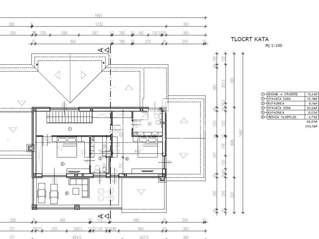
A house of 240m2 on two floors with a garage is being built in an attractive neighborhood near Poreč.
On the ground floor of the house there is a spacious living room with a fireplace, a kitchen with a dining room, a storage room, an exit to a covered terrace, a summer kitchen with a fireplace and a yard with a swimming pool (12x4). Guest toilet, two bedrooms with bathrooms. Entrance to the garage from the outside and also from the house. On the first floor there are two more bedrooms with bathrooms and access to the terrace with a view of the sea.
Underfloor heating will run through the entire house, and cooling will be through an air conditioner. A very nice project, and in the current phase, some things can be changed according to your own taste.
Características
Tipologia
Vivenda familiar
Contrato
Venda
Andar
1
Elevador
Não
Superfície
240 m² | comercial 1.163 m²
Quartos
4
Quartos
4
Casas de banho
3+
Mobilado
Não
Aquecimento
Individualizado, piso radiante
Ar condicionado
Frio/quente
Outras características
  • Piscina
Detalhe da superfície

Habitação

Andar
1
Superfície
240,0 m²
Coeficiente
100%
Tipo de superfície
Principal
Sup comercial
240,0 m²

Terreno

Andar
Rés-do-chão
Superfície
923,0 m²
Coeficiente
100%
Tipo de superfície
Acessórios
Sup comercial
923,0 m²
Informações de preço
Preço
€ 750.000
Preço por m²
645 €/m²
Eficiência energética
  • Ano de construção

    2022
  • Estado

    Novo / Em construção
  • Aquecimento

    Individualizado, piso radiante
  • Ar condicionado

    Frio/quente
Descubra cada canto da propriedade
+5
Opções adicionais

Contactar o anunciante

Ou