Vivenda familiar 133 m², nova, Centar - Gulići, Poreč

€ 580.000
3
133 m²
3
Não
Cave

Nota

Anúncio atualizado em 02/05/2026
Descrição

This description has been translated automatically and may not be accurate

referência: 1614

K105
Detached stone house with garden near Poreč.
The house is spread over the ground floor and the 1st floor, and is located in an extremely quiet location.
The ground floor consists of a bedroom, a bathroom, a technical room/laundry room, a living room with a kitchen and a dining room with an exit to the yard where there is a sunbathing area, a swimming pool and a covered summer kitchen with a fireplace.
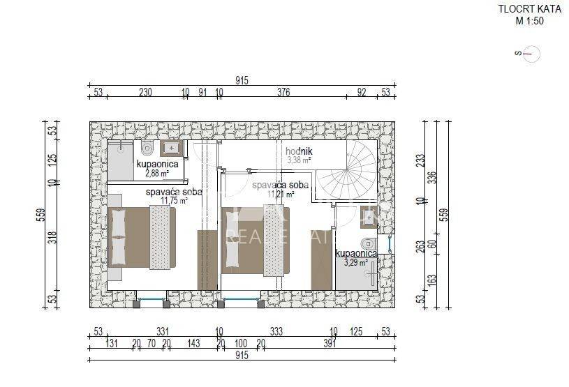
On the 1st floor there are 2 bedrooms, each with its own bathroom.
The house has been adapted, it has 60 cm thick stone walls and wooden beams that combine the rustic with the modern.
There is a parking space in the yard, and the environment is beautifully landscaped with lawn, Mediterranean plants and olive trees.
All rooms have air conditioners for heating and cooling, as well as electric underfloor heating.
During the adaptation, the electricity, water and sewage installations were replaced.
The house is sold fully furnished and equipped.
This house is an ideal solution to the housing issue or as an investment for the purpose of tourist rental.
Características
Tipologia
Vivenda familiar
Contrato
Venda
Andar
1
Elevador
Não
Superfície
133 m² | comercial 671 m²
Quartos
3
Quartos
3
Casas de banho
3
Mobilado
Não
Estacionamento, lugares de estacionamento
1 em estacionamento compartilhado
Aquecimento
Individualizado, piso radiante
Ar condicionado
Frio/quente
Detalhe da superfície

Habitação

Andar
1
Superfície
133,0 m²
Coeficiente
100%
Tipo de superfície
Principal
Sup comercial
133,0 m²

Terreno

Andar
Rés-do-chão
Superfície
538,0 m²
Coeficiente
100%
Tipo de superfície
Acessórios
Sup comercial
538,0 m²
Informações de preço
Preço
€ 580.000
Preço por m²
864 €/m²
Eficiência energética
  • Ano de construção

    2023
  • Estado

    Novo / Em construção
  • Aquecimento

    Individualizado, piso radiante
  • Ar condicionado

    Frio/quente
Descubra cada canto da propriedade
+35
Opções adicionais

Contactar o anunciante

Ou