Apartamento T4 novo, rés-do-chão, Centar - Gulići, Poreč

€ 540.400
4
152 m²
3+
1
Não
Cave

Nota

Anúncio atualizado em 23/12/2025
Descrição

This description has been translated automatically and may not be accurate

referência: 1785

S157
Apartment with private pool and yard - Tar - Vabriga
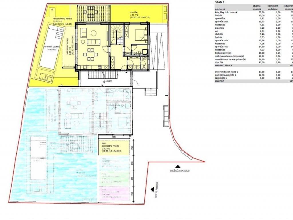
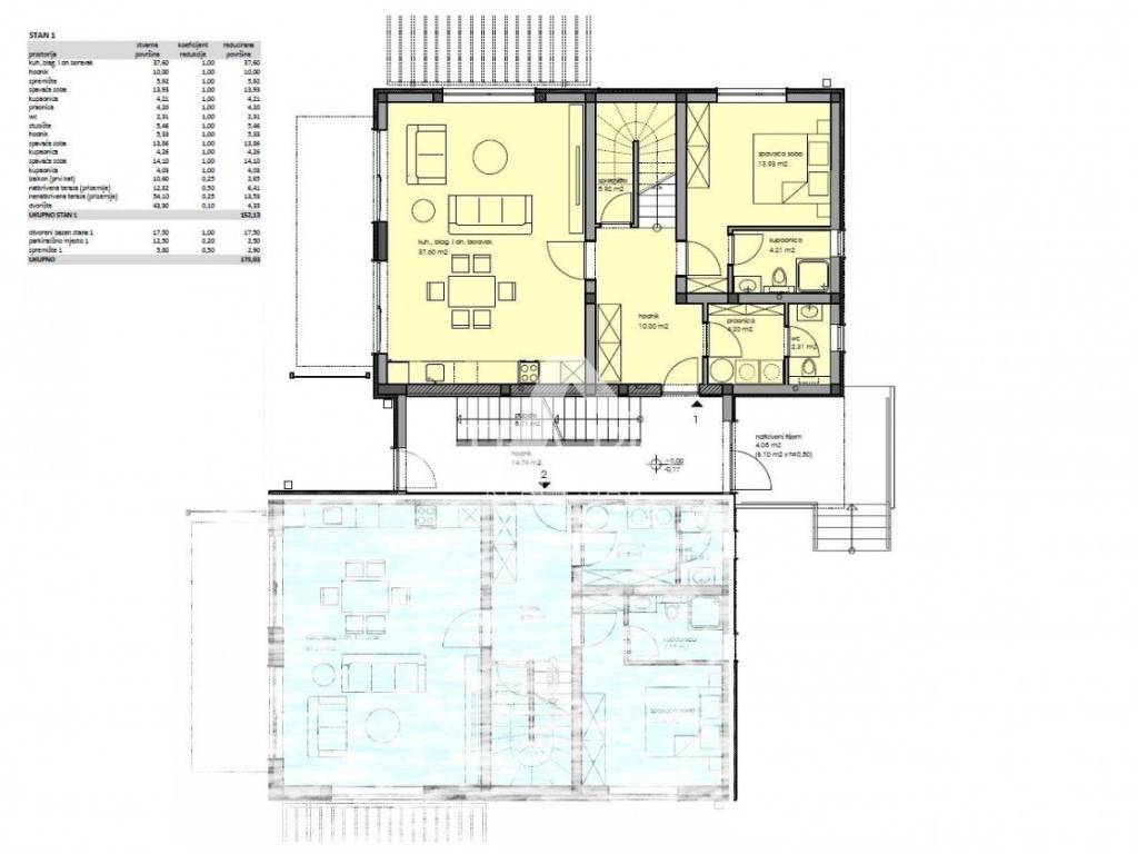
The apartment is located in a quiet location in a newly built residential building with 4 apartments.
The two-story apartment consists of a ground floor and a first floor.
On the ground floor there is an entrance hall, a laundry room with a separate toilet, one bedroom with its own bathroom, a storage room under the stairs, a large living room with a kitchen and dining room, from which there is an exit to the terrace, which is partially covered with pergolas, and a sun deck with its own swimming pool.
In the corridor, stairs lead to the first floor.
On the first floor there is a hallway, two bedrooms, each with its own bathroom and both rooms have access to a common balcony that offers a wonderful view of the landscape and the sea.
There is underfloor heating in the living room and bathrooms and air conditioners in the bedrooms.
The apartment has one parking space in front of the building, and one more can be purchased for an additional fee.
In the basement of the building there is a storage room of 5.80 m2.
The construction is in the final phase, and the completion of the works is scheduled for 04/2024. years.
All necessary facilities are located near the apartment, school, kindergarten, playground, shops, post office, pharmacy.
Características
Tipologia
Apartamento
Contrato
Venda
Andar
1
Elevador
Não
Superfície
152 m² | comercial 195 m²
Quartos
4
Quartos
3
Casas de banho
3+
Mobilado
Não
Estacionamento, lugares de estacionamento
1 em estacionamento compartilhado
Aquecimento
Individualizado, piso radiante
Ar condicionado
Frio/quente
Outras características
  • Piscina
Detalhe da superfície

Habitação

Andar
1
Superfície
152,0 m²
Coeficiente
100%
Tipo de superfície
Principal
Sup comercial
152,0 m²

Terreno

Andar
Rés-do-chão
Superfície
43,0 m²
Coeficiente
100%
Tipo de superfície
Acessórios
Sup comercial
43,0 m²
Informações de preço
Preço
€ 540.400
Preço por m²
2.771 €/m²
Eficiência energética
  • Ano de construção

    2024
  • Estado

    Novo / Em construção
  • Aquecimento

    Individualizado, piso radiante
  • Ar condicionado

    Frio/quente
Descubra cada canto da propriedade
+16
Opções adicionais

Contactar o anunciante

Ou