Apartamento T3 novo, primeiro andar, Centar - Gulići, Poreč

€ 237.000
3
76 m²
2
1
Não
Cave

Nota

Anúncio atualizado em 23/12/2025
Descrição

This description has been translated automatically and may not be accurate

referência: 1911

S226
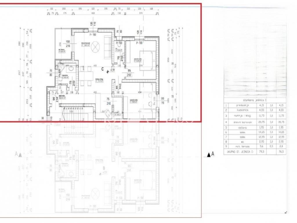
Apartment C on the 1st floor - around Poreč
The apartment will be located in a new modern building, which will consist of a total of 5 residential units.
The apartments are located in a great location near the center of Poreč, only 5 km from the beaches.
For sale are two-room apartments, two each on the first and second floor. The apartments are 76.5 m2 and consist of an entrance hall, living room, open-style kitchen and dining room, pantry, bathroom, two bedrooms, guest toilet and a terrace with a beautiful view of the surrounding area.
The first phase of water-based underfloor heating was installed, and cooling is provided by air conditioning.
At the customer's request, it is possible to install a heat pump.
The apartment also has one parking space and it is possible to buy an additional parking space.
The main advantages of this apartment are the proximity of all essential facilities for life, a quiet location, proximity to the sea and the center, and quality construction.
The end of the works is scheduled for April 2025.
Características
Tipologia
Apartamento
Contrato
Venda
Andar
1 andar
Elevador
Não
Superfície
76 m²
Quartos
3
Quartos
2
Casas de banho
2
Mobilado
Não
Estacionamento, lugares de estacionamento
1 em estacionamento compartilhado
Aquecimento
Individualizado
Ar condicionado
Frio/quente
Informações de preço
Preço
€ 237.000
Preço por m²
3.118 €/m²
Eficiência energética
  • Ano de construção

    2024
  • Estado

    Novo / Em construção
  • Aquecimento

    Individualizado
  • Ar condicionado

    Frio/quente
Descubra cada canto da propriedade
+14
Opções adicionais

Contactar o anunciante

Ou