map icon

Apartamento T3 novo, segundo andar, Privlaka

Privlaka
€ 720.000
3
158 m²
2
Terraço

Nota

Anúncio atualizado em 19/02/2026
Descrição

referência: EK-846535

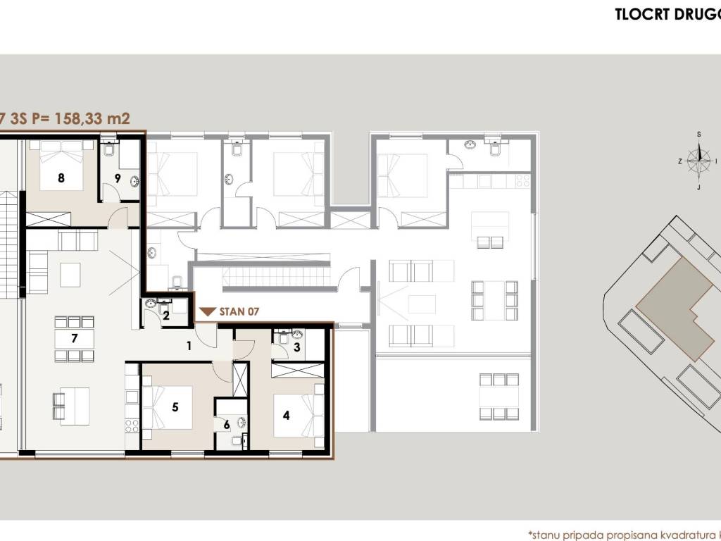
Stan S7 (penthouse) nalazi se u na drugome katu ekskluzivne novogradnje smještene u mirnom dijelu Privlake, svega 50 metara od prekrasne pješčane plaže u drugom redu do mora. Riječ je o luksuznomstanu ukupne neto površine 158,33 m², dok bruto površina sa svim pripadcima iznosi 295,98 m². Stanu pripada jedno vanjsko parkirno mjesto, što dodatno doprinosi komforu i praktičnosti svakodnevnog života. Stan se sastoji od prostrane kuhinje povezane s blagovaonicom i dnevnim boravkom, tri udobne spavaće sobe, svaka soba ima vlastitu kupaonicu, dodatnog WC-a, natkrivene terase i krovne terase ( povezane unutarnjim stubištem) površine 150,05 m2 s koje se pruža spektakularan pogled na more, otoke, zalazak sunca i Velebit. Posebna pažnja posvećena je kvaliteti izvedbe pa su ugrađeni najmoderniji i najkvalitetniji materijali, a arhitektura je suvremenog dizajna s velikim staklenim površinama koje omogućuju obilje prirodnog svjetla. Stan je opremljen klima uređajima za grijanje i hlađenje, a podno grijanje provedeno je u svim prostorijama osim spavaćih soba, što jamči ugodnu temperaturu tijekom cijele godine. Lokacija kombinira privatnost i mirno okruženje s neposrednom blizinom mora i prekrasne pješčane plaže, pa je idealna za miran obiteljski život ili kao investicija za turistički najam. Vlasnik je pravna osoba u sustavu PDV-a pa kupac ne plaća porez na promet nekretnina, što dodatno povećava isplativost kupnje. Završetak svih radova i useljenje planirani su za proljeće 2026. godine, a uskoro se očekuju i nove fotografije trenutnog stanja gradnje.



U ponudi su i sljedeći stanovi u istoj zgradi:

S1 - prizemlje, dvosoban stan sa vrtom 85,35 m² – 345.000,00 €
S2 - prizemlje, dvosoban stan sa vrtom i bazenom 108,55 m² - 530.000,00 €
S3 – prizemlje, dvosoban stan sa vrtom i bazenom 97,87 m² - 425.000,00 €
S4 - 1. kat, dvosoban stan 80,75 m² – 320.000,00 €
S5 - 1. kat, dvosoban stan 80,70 m² – 335.000,00 €
S6 – 1. kat, dvosoban stan 80,72 m² – 325.000,00 €
S7 – 2. kat trosoban stan sa krovnom terasom 158,33 m² – 720.000,00 €
S8 - 2. kat, trosoban stan sa krovnom terasom 157,69 m² – 685.000,00 €

Kontaktirajte nas za više informacija ili dogovor oko razgledavanja!
Características
Tipologia
Sótão | Propriedade plena | Propriedade de luxo
Contrato
Venda
Andar
2
Andares do Edifício
2
Superfície
158 m²
Quartos
3
Quartos
3
Terraço
Sim
Aquecimento
Individualizado, piso radiante
Ar condicionado
Ar condicionado, frio/quente
Distância do mar
50 m
Outras características
  • Porta blindada
  • Videofone
Detalhe da superfície

Habitação

Andar
2
Superfície
158,3 m²
Coeficiente
100%
Tipo de superfície
Principal
Sup comercial
158,3 m²
Informações de preço
Preço
€ 720.000
Preço por m²
4.557 €/m²
Eficiência energética

Consumo de energia

≥ 250 kWh/m² anoA

Descubra cada canto da propriedade
+7
Opções adicionais

Contactar o anunciante

Ou