Apartamento T3 novo, segundo andar, Seget

€ 364.500
3
1
2
Sim
Terraço

Nota

Anúncio atualizado em 26/11/2025
Descrição

This description has been translated automatically and may not be accurate

referência: RE765024

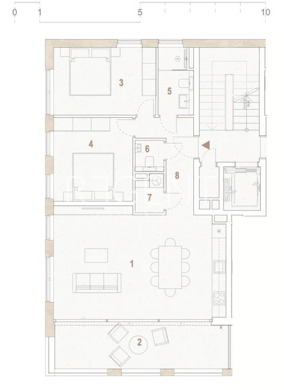
Apartment S4 is perfect for those who want comfort, functionality, and a view – with a three-sided orientation and a spacious loggia. Located on the second floor of one of five buildings within a modern residential complex in Seget Donji, apartment S4 offers a harmonious layout, plenty of light, and an open view towards the Trogir Bay and the island of Čiovo. It is ideal for living, vacation, or long-term rental. Location The apartment is located in Seget Donji, in Split-Dalmatia County, in a quiet and well-connected location. Within walking distance are shops, the city beach (800 m), a marina, a school, a kindergarten, and all everyday amenities. The historic center of Trogir can be reached with a pleasant 20-minute walk. Project Description The apartment is part of a multi-story building with a total of five floors (ground floor + 4 floors). The building has an elevator, a private entrance and a secured outdoor parking space. The project is characterized by an airy layout of the buildings, green areas and views of the sea and nature. Quality construction and the three-sided orientation of the apartments guarantee comfort and lasting value. Rooms of apartment S4 Living room with kitchen and dining area – 35.20 m² Bedroom 1 – 13.13 m² Bedroom 2 – 12.59 m² Bathroom – 4.27 m² Additional WC – 1.69 m² Laundry room – 1.94 m² Hallway – 6.31 m² Covered loggia – 15.40 m² Total net area: 90 m² Equipment and technical characteristics Ceiling height: 270 cm Three-sided orientation PVC joinery Floor coverings: PVC laminate and ceramics Energy-efficient construction Elevator in the building Included outdoor parking Accessibility for people with disabilities Completion date and move-in Start of construction: September 2025 Completion of works: end of 2026 Move-in: after obtaining a use permit For more information, feel free to contact us.
Características
Tipologia
Apartamento
Contrato
Venda
Andar
2 andar
Andares do Edifício
4
Elevador
Sim
Quartos
3
Quartos
2
Casas de banho
1
Terraço
Sim
Estacionamento, lugares de estacionamento
1 em estacionamento compartilhado
Distância do mar
800 m
Informações de preço
Preço
€ 364.500
Eficiência energética

Consumo de energia

A+

Planta
Descubra cada canto da propriedade
+2
Opções adicionais

Contactar o anunciante

Ou