Apartamento T3 novo, segundo andar, Seget

€ 364.500
3
1
2
Sim
Terraço

Nota

Anúncio atualizado em 26/11/2025
Descrição

This description has been translated automatically and may not be accurate

referência: RE496692

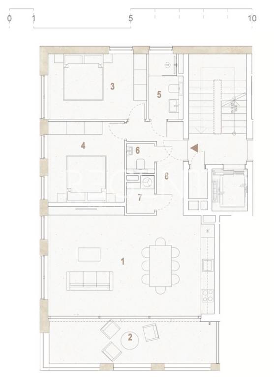
Apartment S6 is characterized by a spacious loggia, three-sided orientation and sea view – ideal for everyday life or relaxing by the coast. Located on the third floor of one of the five modernly designed buildings of the residential complex in Seget Donji, apartment S6 offers a thoughtful layout and plenty of natural light. The loggia with a south orientation provides a view of the Trogir Bay and Čiovo island, while the entire space is designed for comfort and functionality. Location The apartment is located in Seget Donji, Split-Dalmatia County, in a quiet zone with excellent connectivity. Nearby are a school, kindergarten, shops, marina and the city beach (800 m), and the center of Trogir can be reached with a 20-minute walk. The location offers privacy, but also proximity to all amenities. Project Description The apartment is located in a building with a total of five floors (ground floor + 4 floors), with an elevator, spacious staircase and secured outdoor parking space. The buildings are spaced with enough space between them, with landscaped green areas. The project offers peace, views and modern architecture adapted to today's living needs. Rooms of apartment S6 Living room with kitchen and dining room – 35.20 m² Bedroom 1 – 13.13 m² Bedroom 2 – 12.59 m² Bathroom – 4.27 m² Additional WC – 1.69 m² Laundry room – 1.94 m² Hallway – 6.31 m² Covered loggia – 15.40 m² Total net area: 90 m² Equipment and technical characteristics Ceiling height: 270 cm Three-sided orientation PVC joinery Floor coverings: PVC laminate and ceramics Energy-efficient construction Elevator in the building Outdoor parking included Accessibility for people with disabilities Completion and move-in date Construction start: September 2025 Completion of works: end of 2026 Move-in: after obtaining a use permit For more information, feel free to contact us.
Características
Tipologia
Apartamento
Contrato
Venda
Andar
2 andar
Andares do Edifício
4
Elevador
Sim
Quartos
3
Quartos
2
Casas de banho
1
Terraço
Sim
Estacionamento, lugares de estacionamento
1 em estacionamento compartilhado
Distância do mar
800 m
Informações de preço
Preço
€ 364.500
Eficiência energética

Consumo de energia

A+

Planta
Descubra cada canto da propriedade
+2
Opções adicionais

Contactar o anunciante

Ou