Apartamento T3 novo, quarto andar, Seget

€ 378.000
3
1
4
Sim
Terraço

Nota

Anúncio atualizado em 26/11/2025
Descrição

This description has been translated automatically and may not be accurate

referência: RE778015

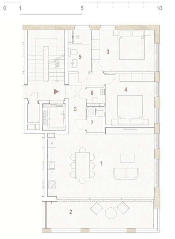
Apartment S9 is located on the top floor of the building, with an open view and smartly utilized space – ideal for modern family life or relaxation by the coast. Located on the fourth floor of one of five buildings within the new residential complex in Seget Donji, apartment S9 offers optimal privacy, southern orientation, and a spacious loggia with a view towards Trogir Bay and Čiovo. With its three-sided orientation and well-arranged rooms, it's the perfect choice for everyday living or vacation. Location The apartment is located in Seget Donji, Split-Dalmatia County, in a quiet street within walking distance of the sea, the beach (800 m), shops, kindergarten, school, and marina. The historic center of Trogir is a 20-minute walk away, and good transport links provide easy access to Split as well. Project Description The apartment is part of a building with a total of five floors (ground floor + 4 floors), with an elevator, a spacious staircase, and a secured outdoor parking space. The project has been carefully designed to combine contemporary style with functional solutions and open views towards the sea. Rooms of apartment S9 Living room with kitchen and dining area – 35.25 m² Bedroom 1 – 13.13 m² Bedroom 2 – 12.59 m² Bathroom – 4.27 m² Additional WC – 1.69 m² Laundry room – 2.00 m² Hallway – 6.16 m² Covered loggia – 15.40 m² Total net area: 90 m² Equipment and technical characteristics Ceiling height: 270 cm Three-sided orientation PVC windows and doors Floor coverings: PVC laminate and ceramic tiles Energy-efficient construction Elevator in the building Included outdoor parking Accessibility for people with disabilities Completion and move-in date Construction start: September 2025. Completion of works: end of 2026. Move-in: after obtaining a usage permit For more information, feel free to contact us.
Características
Tipologia
Apartamento
Contrato
Venda
Andar
4 andar
Andares do Edifício
4
Elevador
Sim
Quartos
3
Quartos
2
Casas de banho
1
Terraço
Sim
Estacionamento, lugares de estacionamento
1 em estacionamento compartilhado
Distância do mar
800 m
Informações de preço
Preço
€ 378.000
Eficiência energética

Consumo de energia

A+

Planta
Descubra cada canto da propriedade
+2
Opções adicionais

Contactar o anunciante

Ou