Apartamento novo, terceiro andar, Grad - Meje, Split

€ 1.350.000
5
1 m²
3
3
Sim
Terraço

Nota

Anúncio atualizado em 26/11/2025
Descrição

This description has been translated automatically and may not be accurate

referência: RE875218

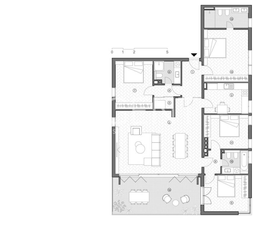
Located in one of the most prestigious locations in Split is the Villa Mareterra project, a modern new building designed for comfortable and safe living. Living in Meje means prestige, privacy and immediate proximity to the sea, Marjan and the city center, and it is this combination of peace and practicality that makes this location perfect for families, couples and individuals who are looking for more than an apartment – they want long-term value and a luxurious lifestyle. The Mate apartment is located on the high ground floor and covers a total of 177.95 m², of which 130.87 m² is the interior, and 47.08 m² is the terrace and associated garden. The layout is designed to provide maximum comfort and functionality – a spacious living room with a dining area and access to the terrace, a modern kitchen with a pantry, three bedrooms and three bathrooms. The private garden and large terrace allow you to enjoy the peaceful surroundings and greenery, which makes the apartment particularly attractive. The quality of construction and equipment is visible in every detail: heat pump with underfloor heating, multi-split air conditioning system with remote control, Schüco aluminum joinery with electric shutters, first-class parquet and ceramics, interior doors with hidden doorframes and sanitary equipment of premium level. The apartment also includes a storage room in the basement, while the garage spaces are equipped with charging connections for electric vehicles. The building is designed as a detached building with two underground garage floors, a ground floor, three floors and a penthouse, and has a total of only eight residential units, which further ensures privacy and peace. Each unit has its own terrace, and the layout of the apartments ensures optimal orientation and plenty of natural light. Completion of works is planned within 30 months from the start of construction, and moving in after obtaining a use permit. The method of payment is provided in phases – 30% upon signing the preliminary contract, 40% after the completion of the construction and 30% after the completion of the facade, with the possibility of an agreement with the buyer. The Mate apartment is an ideal choice for anyone looking for a luxurious and spacious home with a private garden in the heart of Split, in a location that never loses value. For all additional information, as well as an appointment to view the property, feel free to contact us.
Características
Tipologia
Apartamento
Contrato
Venda
Andar
3 andar
Andares do Edifício
4
Elevador
Sim
Superfície
1 m²
Quartos
5
Quartos
4
Casas de banho
3
Terraço
Sim
Estacionamento, lugares de estacionamento
1 em garagem, 1 em estacionamento compartilhado
Informações de preço
Preço
€ 1.350.000
Preço por m²
1.350.000 €/m²
Eficiência energética
  • Estado

    Novo / Em construção
  • Certificação energética

    Livre
Planta
Opções adicionais

Contactar o anunciante

Ou