Vivenda familiar Obala kneza Trpimira, Brodarica - Višnjik, Zadar

Preço sob consulta
5
383 m²
2
Não
Varanda
Terraço
Mobilado

Nota

Anúncio atualizado em 24/03/2026
Descrição

This description has been translated automatically and may not be accurate

referência: EK-859439

We are selling a newly built, modernly furnished, and fully equipped family house with a yard in the city of Zadar. This luxurious house is located right by the sea, built just 10 meters from the most beautiful and luxurious part of the urban coastline of Zadar, Brodarica on Borik. The goal of the architectural firm was to design a timeless, modern vacation home that would perfectly blend into the existing surroundings. A decisive factor in the design of this architectural masterpiece was the immediate proximity to the sea and the unique atmosphere offered by this location. All rooms, living areas, bathrooms, and terraces are oriented towards the sea or the marina with sea views, and from every room, you can enjoy a view of the sea and Zadar harbor or the most beautiful sunset. The entire house has a movable modular facade, which solves all issues of privacy from neighbors or viewpoints, as well as shading the building. This original solution always ensures the best atmosphere, whether it is related to the view or the light but also the shading of the building. This original solution always ensures the best atmosphere, whether it's about the view or the light, and also changes the appearance of this beautiful house both inside and out.
In the immediate vicinity of this house is the oldest Tennis Club in Zadar, the Vitrenjak boat marina, as well as beautiful beaches for swimming.
For more details, contact us directly...
Características
Tipologia
Vivenda familiar | Propriedade plena | Propriedade de luxo
Contrato
Venda | Imóvel com receita
Andar
Rés-do-chão, de 1 a 3
Andares do Edifício
2
Elevador
Não
Superfície
383 m²
Quartos
5
Quartos
3
Cozinha
Cozinha habitável
Casas de banho
2
Mobilado
Sim
Varanda
Sim
Terraço
Sim
Estacionamento, lugares de estacionamento
2 em garagem, 2 em estacionamento compartilhado
Aquecimento
Individualizado
Distância do mar
10 m
Outras características
  • Armário
  • Banheiro separado
  • Estação de carregamento de carros elétricos
  • Exposição externa
  • Fibra Óptica
  • Hidromassagem
  • Janelas em vidro triplo / metal
  • Lareira
Detalhe da superfície

Habitação

Andar
1
Superfície
133,0 m²
Coeficiente
100%
Tipo de superfície
Principal
Sup comercial
133,0 m²

Habitação

Andar
2
Superfície
133,0 m²
Coeficiente
100%
Tipo de superfície
Principal
Sup comercial
133,0 m²

Outro

Andar
Rés-do-chão
Superfície
85,0 m²
Coeficiente
75%
Tipo de superfície
Principal
Sup comercial
63,8 m²

Garagem

Andar
Rés-do-chão
Superfície
40,0 m²
Coeficiente
25%
Tipo de superfície
Principal
Sup comercial
10,0 m²

Terraço

Andar
3
Superfície
125,0 m²
Coeficiente
10%
Tipo de superfície
Principal
Sup comercial
12,5 m²

Externo

Andar
Rés-do-chão
Superfície
302,0 m²
Coeficiente
10%
Tipo de superfície
Principal
Sup comercial
30,2 m²
Informações de preço
Preço
Preço sob consulta
Eficiência energética

Consumo de energia

≥ 250 kWh/m² anoA+

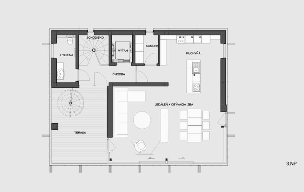
Planta
Snimka zaslona 2025-11-27 124544
Snimka zaslona 2025-11-27 124559
Snimka zaslona 2025-11-27 124647
Snimka zaslona 2025-11-27 124622
Snimka zaslona 2025-11-27 124705
Descubra cada canto da propriedade
+37
Opções adicionais

Contactar o anunciante