Отдельный дом на одну семью 95 m², новая, Vodice

€ 399 000
3
95 m²
2
Нет
Терраса

Пометка

Объявление обновлено 19.01.2026
Описание

This description has been translated automatically and may not be accurate

ID: K2221

Водице - НОВОСТРОЙКА Двойной дом с бассейном, 700 м от центра

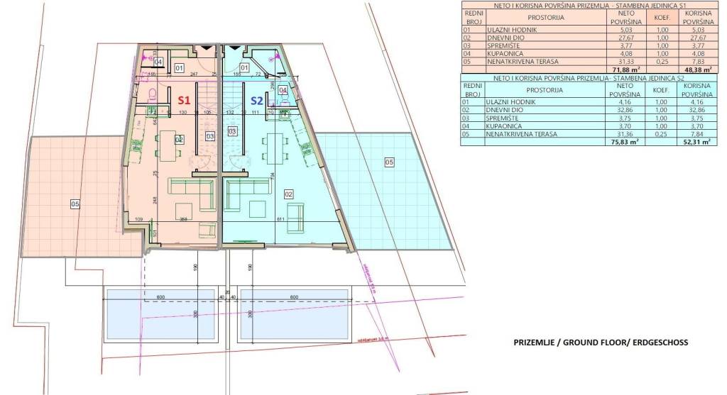
Водице-**НОВОСТРОЙКА** продаются S1 и S2 двойные дома с бассейном в тихом районе. Дом современного дизайна имеет два этажа: цокольный этаж + этаж. В настоящее время строится и будет оснащён в соответствии с последними строительными стандартами: ПВХ столярка с алюминиевыми роллетами с электрическими подъемниками, кондиционеры в спальнях и гостиной, тёплый пол в ванных комнатах и гостиной. Каждому дому принадлежит соответствующая часть сада, два парковочных места и бассейн. Планируемый срок окончания строительства – конец 2026 года. Находится в тихом районе, от центра примерно 700 м, а от ближайшего пляжа 850 м2.

Дом S1 имеет общую полезную жилую площадь 95,63 м2 и состоит из цокольного этажа и этажа. Цокольный этаж площадью 48,38 м2 включает входную зону, ванную комнату, кладовую, а также кухню с обеденной зоной и гостиную в концепции open space с выходом на террасу площадью 31,33 м2, сад и бассейн площадью 18 м2. Внутренней лестницей поднимаются на этаж дома площадью 47,25 м2, который состоит из коридора, ванной комнаты, трёх спален и крытой террасы площадью 11,55 м2.

Дом S2 имеет общую полезную жилую площадь 105,10 м2 и состоит из цокольного этажа и этажа. Цокольный этаж площадью 52,31 м2 включает входную зону, ванную комнату, кладовую, а также кухню с обеденной зоной и гостиную в концепции open space с выходом на террасу площадью 31,36 м2, сад и бассейн площадью 18 м2. Внутренней лестницей поднимаются на этаж дома площадью 52,79 м2, который состоит из коридора, ванной комнаты, трёх спален и крытой террасы площадью 15,66 м2.
Характеристики
Типология
Отдельный дом на одну семью | Средний класс недвижимости
Договор
Продажа
Лифт
Нет
Площадь
95 m²
Помещения
3
Спальни
3
Ванные
2
Балкон
Нет
Терраса
Да
Отопление
Автономное, радиатор, блок питания
Кондиционер
Автономное
Другие характеристики
  • Частный и общий сад
  • Бассейн
Информация о ценах
Цена
€ 399 000
Цена за м²
4 200 €/m²
Энергоэффективность

Потребление энергии

A

Планировка
Откройте для себя каждый уголок объекта недвижимости
+8
Доп. опции

Свяжитесь с рекламодателем

Или