Отдельный дом на одну семью 141 m², новая, Malinska-Dubašnica

€ 650 000
4
141 m²
3
Нет
Балкон
Терраса

Пометка

Объявление обновлено 05.01.2026
Описание

This description has been translated automatically and may not be accurate

ID: ID-1795

Малинска, остров Крк, новостроящаяся недвижимость, двойной дом, бассейн, продажа

Остров Крк, Малинска! Востребованное и тихое место.

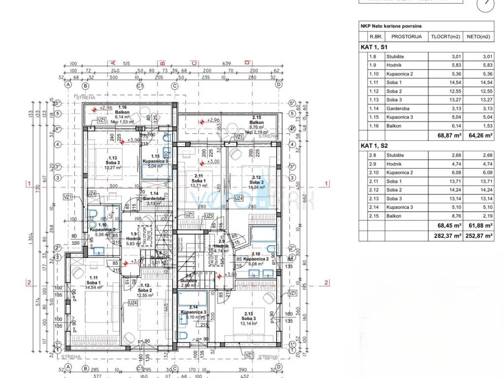
Новостройка. Новый двойной дом общей площадью 141 м2 расположен в востребованном районе Малински. Состоит из цокольного этажа и первого этажа. На цокольном этаже находятся входное помещение, просторная кухня с обеденной зоной и гостиной, ванная комната, спальня, кладовая и крытая терраса площадью 17,32 м2. Из гостиной выход на крытую террасу и участок с бассейном и зоной для загара. На первом этаже расположены коридор, три спальни, две ванные комнаты, гардеробная и балкон площадью 8,76 м2. Качественное строительство и оснащение, включающее: качественную керамическую плитку и сантехнику, мульти-сплит кондиционирование, теплый пол на тепловом насосе, противовзломные двери и два парковочных места на участке. Отличное расположение, 780 м от моря и центра Малински.

Недвижимость находится в системе НДС, покупатель не платит налог на передачу недвижимости!
Если вы хотите узнать больше, вы можете поговорить с Roman Doles.
Характеристики
Типология
Отдельный дом на одну семью | Средний класс недвижимости
Договор
Продажа
Лифт
Нет
Площадь
141 m²
Помещения
4
Спальни
4
Ванные
3
Балкон
Да
Терраса
Да
Отопление
Автономное, радиатор, блок питания
Кондиционер
Автономное
Расстояние до моря
780 m
Другие характеристики
  • Бассейн
  • Железная дверь
Информация о ценах
Цена
€ 650 000
Цена за м²
4 610 €/m²
Энергоэффективность
  • Год постройки

    2025
  • Состояние

    Новое / На стадии строительства
  • Отопление

    Автономное, радиатор, блок питания
  • Кондиционер

    Автономное
Откройте для себя каждый уголок объекта недвижимости
+5
Доп. опции

Свяжитесь с рекламодателем

Или