Трехкомнатная квартира новое, второй этаж, Šibenik

€ 800 000
3
128 m²
2
2
Нет

Пометка

Объявление обновлено 20.03.2026
Описание

ID: 111194-94

Ekskluzivni Penthouse - Prvi Red uz More u Žaboriću pored Šibenika

Posredujemo u prodaji luksuznog penthousea smještenog u prvom redu uz more u Žaboriću, pored Šibenika. Ova prestižna nekretnina omogućuje vam jedinstven osjećaj povezanosti s prirodom te spektakularan panoramski pogled na Jadransko more.

Lokacija

Penthouse se nalazi na drugom katu moderne stambene zgrade, smještene tik uz more, s izravnim pristupom plaži. Žaborić je poznat po svojim čistim plažama i mirnom okruženju, idealnom za odmor i luksuzan način života.

Značajke Penthousea

- Prvi red uz more – Neometan pogled na morsku pučinu iz udobnosti vlastitog doma.


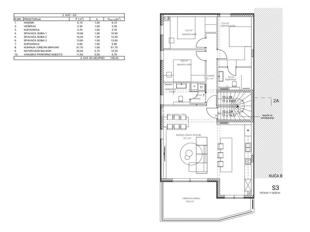
- Stambena površina: 107,4 m2.


- Natkriveni balkon: 20,40 m2 – savršeno mjesto za uživanje u zalascima sunca.


- Hodnik i vešeraj – Praktični prostori za udoban i organiziran život.


- Kupaonice: Dvije moderne kupaonice, od kojih je jedna en-suite uz master spavaću sobu.


- Spavaće sobe: Tri prostrane spavaće sobe, uključujući master sobu s privatnom kupaonicom.


- Dnevni boravak s kuhinjom i blagovaonicom: Otvoren prostor od 51,70 m2, idealan za druženje i opuštanje.


- Velika terasa: 20,40 m2 s panoramskim pogledom na more i plažu.


- Krovna terasa: Ekskluzivan pristup terasi na krovu, idealno mjesto za jacuzzi i privatni lounge prostor.


- Vrhunska kvaliteta gradnje: Koriste se najkvalitetniji materijali i najmoderniji standardi izgradnje, osiguravajući dugotrajnost i luksuz.


- Vanjsko parkirno mjesto: Osigurano jedno parkirno mjesto uz nekretninu.



Dodatne Prednosti

Moderni dizajn, vrhunska gradnja i iznimna lokacija čine ovu nekretninu savršenim izborom za one koji traže prestižni dom uz more.

Uvjeti Kupnje

- Agencijska provizija: Kupac plaća agencijsku proviziju od 2% + PDV od ugovorene kupoprodajne cijene. Ova provizija uključuje cjelokupan pravni i administrativni proces, izradu predugovora i kupoprodajnog ugovora, prijenos režijskih troškova te sve druge potrebne radnje do uknjižbe vlasništva.


- Poslovna politika: Razgledavanje nekretnine organiziramo isključivo nakon potpisane Izjave o razgledu, čime osiguravamo sigurnost i zaštitu interesa svih strana u procesu kupoprodaje.



Kontakt za više informacija i dogovor o razgledavanju

Jurica Pažanin
E-mail: jurica.pazanin@c21.hr
Характеристики
Типология
Квартира | Средний класс недвижимости
Договор
Продажа
Этаж
2 этаж
Этажность здания
2
Лифт
Нет
Площадь
128 m²
Помещения
3
Спальни
3
Ванные
2
Балкон
Нет
Терраса
Нет
Вид
Море
Информация о ценах
Цена
€ 800 000
Цена за м²
6 250 €/m²
Энергоэффективность
  • Год постройки

    2024
  • Состояние

    Новое / На стадии строительства
  • Энергетическая сертификация

    В ожидании сертификации
Откройте для себя каждый уголок объекта недвижимости
+3
Доп. опции

Свяжитесь с рекламодателем

Или