Трехкомнатная квартира новое, первый этаж, Turan - Kantrida - Costabella, Ријека

€ 540 000
3
86 m²
1
1
Да
Терраса

Пометка

Объявление обновлено 30.04.2026
Описание

This description has been translated automatically and may not be accurate

ID: 7389

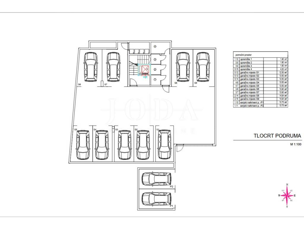
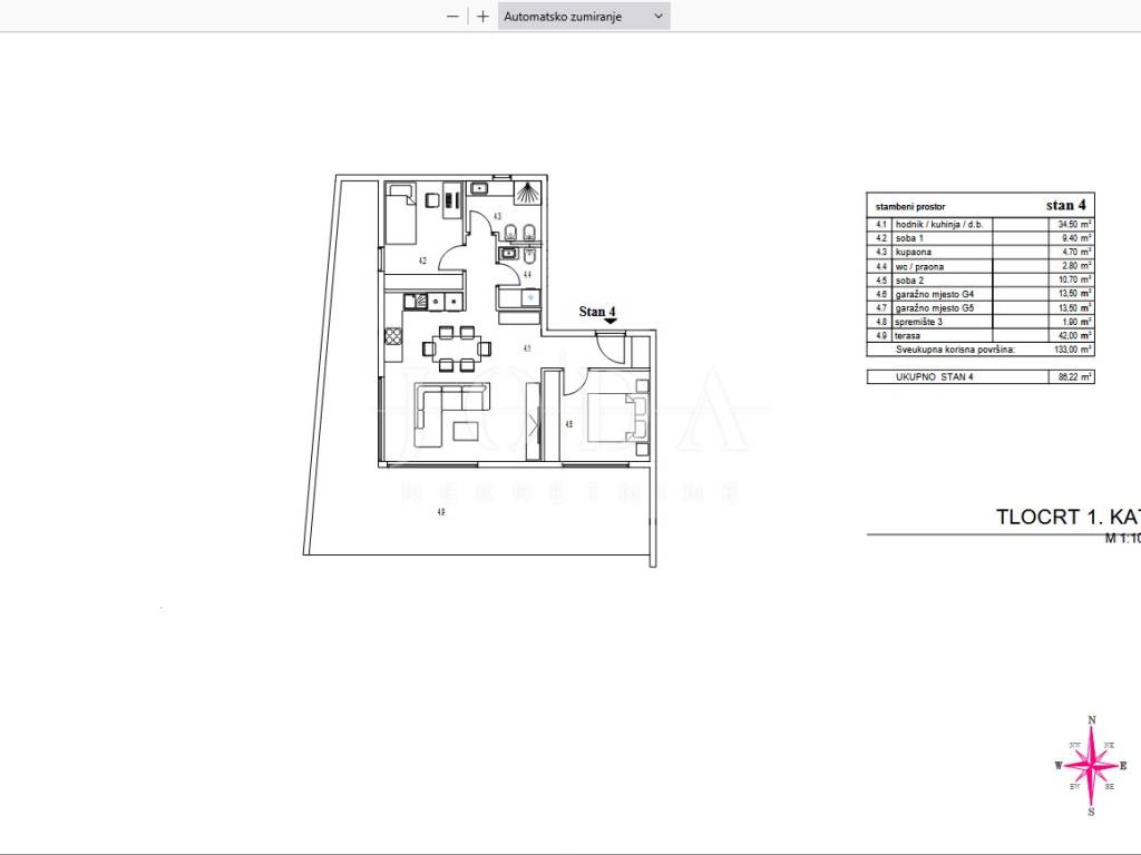
For sale is a luxurious three-bedroom apartment in a new building, on the 2nd floor, a penthouse with a roof terrace with green areas, oriented southeast - southwest. The apartment is located in a building with an elevator, and on the basement floor there is a garage with two parking spaces. The living room is connected to a terrace facing south.

A heat pump with underfloor heating is provided for heating. The apartment is equipped with a smart control system, which allows control of lighting, heating, cooling, security, multimedia and other functions via a universal remote control.

The entrance door is burglar-proof and fire-resistant, while the exterior joinery includes wood-aluminum profiles with triple-layer glass. A system of roller and pleated mosquito nets and aluminum blinds with electric motors complement the quality of the apartment. Ideal for lovers of modern technology and comfort.

ID CODE: 7389

Josip Šikić, mag.oec
Agent s licencom
Mob: +385 91 890 4694
Tel: +385 51 403 771
E-mail: info@joda-nekretnine.hr
www.joda-nekretnine.hr
Характеристики
Типология
Квартира
Договор
Продажа
Этаж
1 этаж
Лифт
Да
Площадь
86 m²
Помещения
3
Спальни
2
Ванные
1
Балкон
Нет
Терраса
Да
Гараж, машиноместа
1 в частный гараж/парковка
Кондиционер
Автономное, холод/тепло
Другие характеристики
  • Сигнализация
  • Железная дверь
Информация о ценах
Цена
€ 540 000
Цена за м²
6 279 €/m²
Энергоэффективность

Потребление энергии

A+

Откройте для себя каждый уголок объекта недвижимости
+20
Доп. опции

Свяжитесь с рекламодателем

Или