1/25


Трехкомнатная квартира новое, нулевой этаж, Tar-Vabriga
€ 500 000
3
80 m²
2
1
Терраса
Меблировано
Объявление обновлено 03.05.2026
Описание
ID: 43636
ID CODE: 43636
DUX Poreč
Mob: +385 99 340 4702
Tel: +385 91 480 8808
E-mail: info@dux-istra.com
www.dux-istra.com
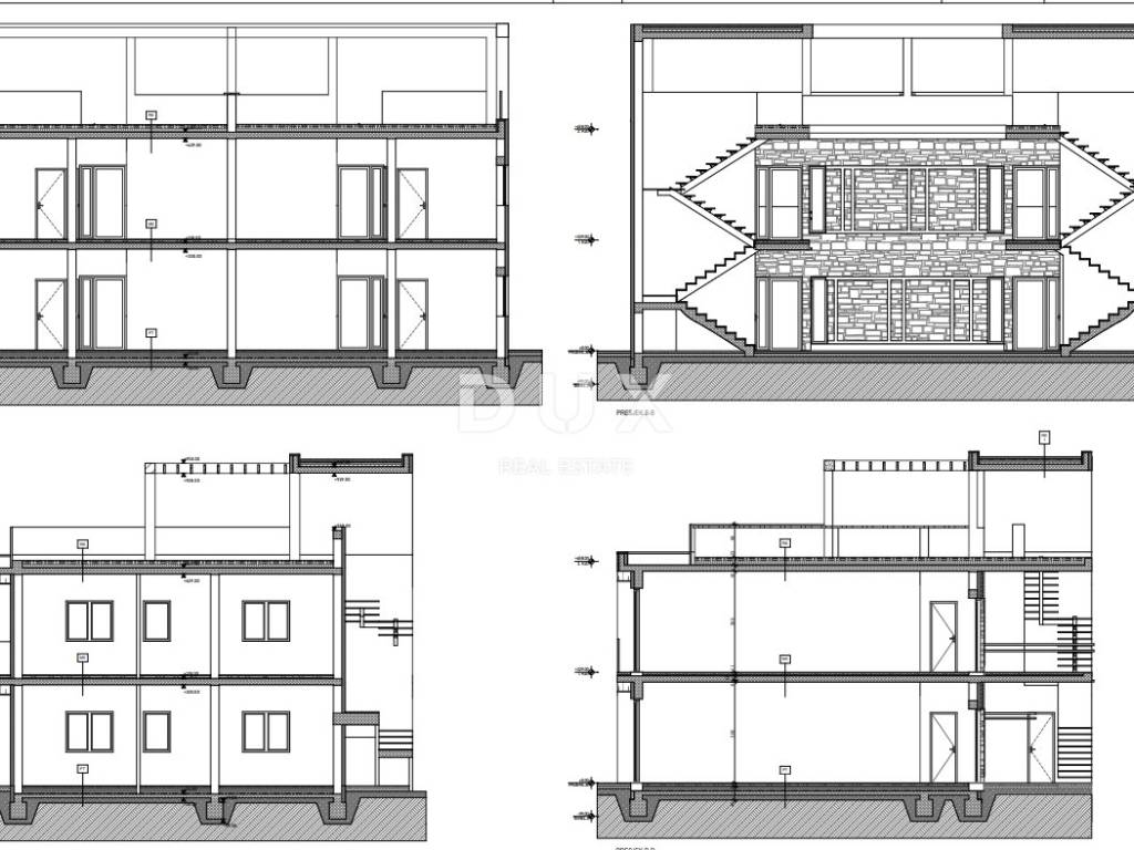
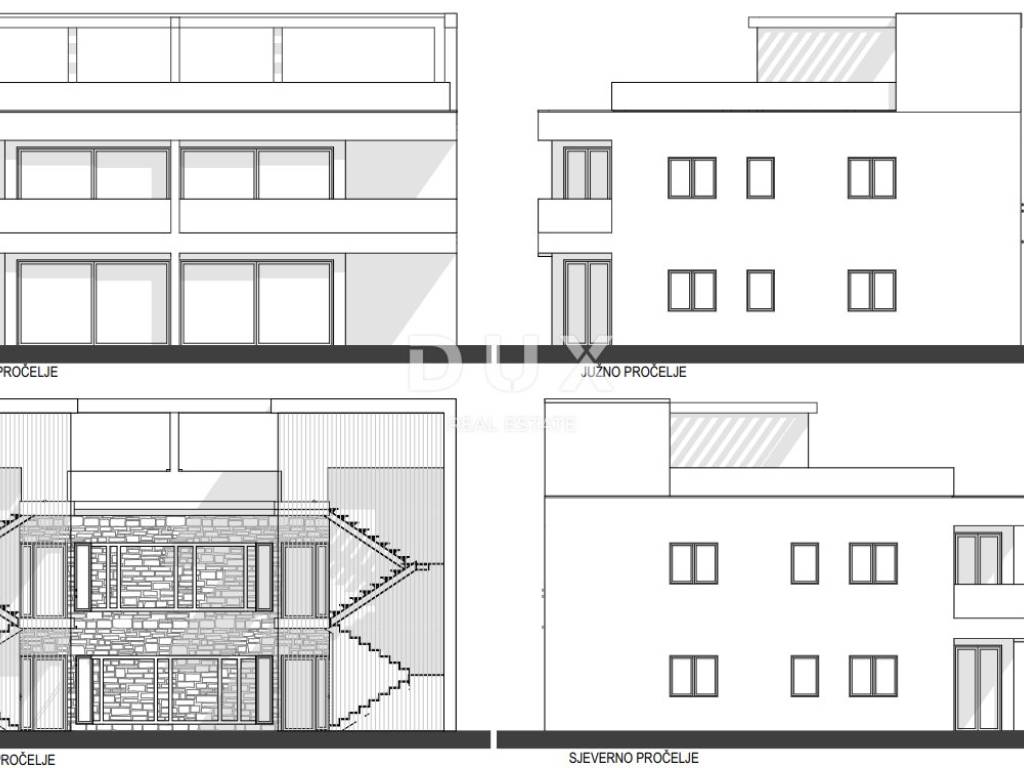
Характеристики
- Типология
- Квартира
- Договор
- Продажа
- Этаж
- 1
- Площадь
- 80 m² | коммерческая 230 m²
- Помещения
- 3
- Спальни
- 2
- Ванные
- 2
- Меблировано
- Да
- Балкон
- Нет
- Терраса
- Да
Деталь поверхности
Жилой фонд
- Этаж
- 1
- Площадь
- 80,0 m²
- Коэффициент
- 100%
- Тип площади
- Основная
- Коммерческая площадь
- 80,0 m²
Участок
- Этаж
- Нулевой этаж
- Площадь
- 150,0 m²
- Коэффициент
- 100%
- Тип площади
- Дополнительная
- Коммерческая площадь
- 150,0 m²
Информация о ценах
- Цена
- € 500 000
- Цена за м²
- 2 174 €/m²
Откройте для себя каждый уголок объекта недвижимости
Доп. опции