Отдельный дом на одну семью 109 m², Marina

€ 322 000
4
109 m²
2

Пометка

Объявление обновлено 20.02.2026
Описание

This description has been translated automatically and may not be accurate

ID: 1275

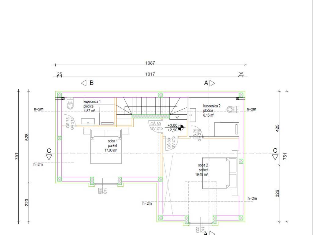
This newly built, three-bedroom detached house in Poljica, near Marina, is for sale. It sits on a 310 m² plot and offers 109 m² of living space spread over the ground and upper floors.
The ground floor features an open-plan kitchen, dining, and living area, as well as a guest toilet. The kitchen and living area provide access to the terrace. An internal staircase leads to the upper floor, which includes two bedrooms and two bathrooms.
The builder has largely completed the facade and exterior work. Interior finishing can be customized to the future owners' preferences and is not included in the price. There is also the option to add a swimming pool.
The house includes two parking spaces and faces west.
Distances: 200 m beeline to the sea - 4 km to Marina - 10 km to the old town of Trogir - 16 km to Split Airport
Если вы хотите узнать больше, вы можете поговорить с Tonka Denizet.
Характеристики
Типология
Отдельный дом на одну семью | Вся недвижимость | Средний класс недвижимости
Договор
Продажа
Этаж
Нулевой этаж
Этажность здания
2
Площадь
109 m²
Помещения
4
Спальни
0
Ванные
2
Меблировано
Нет
Гараж, машиноместа
2 в общая парковка/гараж
Кондиционер
Холод/тепло
Вид
Море
Расстояние до моря
600 m
Деталь поверхности

Другое

Этаж
Нулевой этаж
Площадь
109,0 m²
Коэффициент
100%
Тип площади
Основная
Коммерческая площадь
109,0 m²
Информация о ценах
Цена
€ 322 000
Цена за м²
2 954 €/m²
Энергоэффективность
  • Год постройки

    2024
  • Кондиционер

    Холод/тепло
  • Энергетическая сертификация

    В ожидании сертификации
Откройте для себя каждый уголок объекта недвижимости
+6
Доп. опции

Свяжитесь с рекламодателем

Или