map icon

Квартира второй этаж, Kaštela

Kaštela
€ 220 000
5+
73 m²
1
2

Пометка

Объявление обновлено 28.12.2025
Описание

This description has been translated automatically and may not be accurate

ID: 1476-1

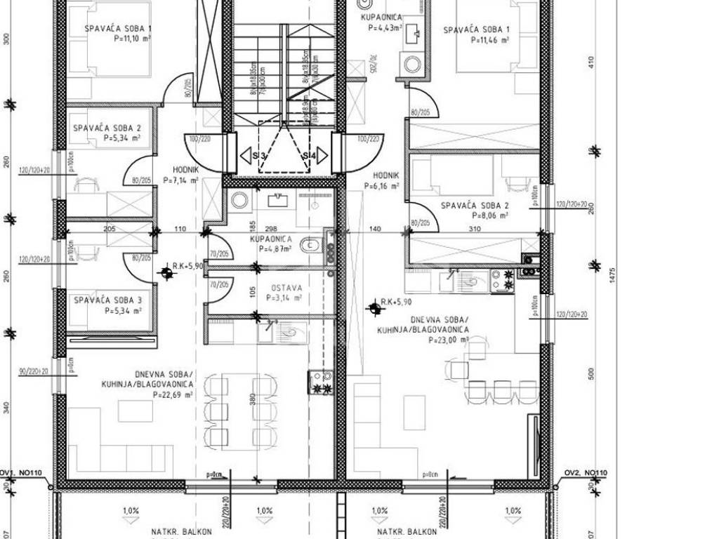
We are offering for sale a three-bedroom apartment on the second floor of a residential building under construction in Kaštel Stari. The apartment code is "S3".
The apartment consists of a hallway, three bedrooms, a bathroom with toilet, a living room with kitchen and dining room, a storage room, and a spacious covered terrace.
The interior area of the apartment is 59.62 m2, and the terrace is 13.50 m2.
Construction will begin in early 2026, and the completion date is 18 months from the start of construction.
The apartment has one outdoor parking space.
The apartment will be equipped with ceramic tiles worth up to 25.00/m, as well as air conditioning in the living room and all bedrooms. The bathroom will have underfloor heating, while the sanitary equipment will be worth up to 1,500.00. All external openings will be equipped with mosquito nets and electric shutters.
For more information, contact the agent.
Характеристики
Типология
Квартира
Договор
Продажа
Этаж
2 этаж
Площадь
73 m²
Помещения
5+
Спальни
3
Ванные
1
Информация о ценах
Цена
€ 220 000
Цена за м²
3 014 €/m²
Энергоэффективность
  • Энергетическая сертификация

    Не классифицирована
Откройте для себя каждый уголок объекта недвижимости
+5
Доп. опции

Свяжитесь с рекламодателем

Или