Отдельный дом на одну семью 250 m², Cerovlje

€ 400 000
5
250 m²
3
Да
Балкон
Терраса

Пометка

Объявление обновлено 17.01.2026
Описание

This description has been translated automatically and may not be accurate

ID: IS1519469

This beautiful stone house, located in Cerovlje, covers 200 m and offers a peaceful life in unspoiled nature. With a garden of 749 m, the house provides the perfect balance of privacy, comfort, and functionality, while from the terrace, you can enjoy a spectacular panoramic view of the hills and surrounding nature.

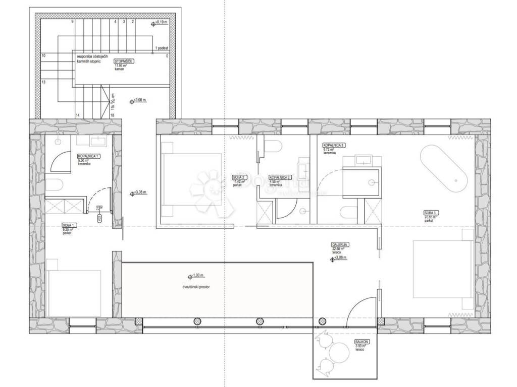
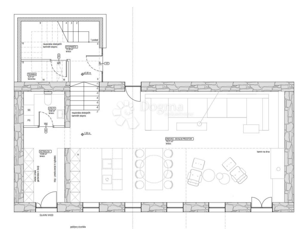
The house consists of two floors. The ground floor features a spacious open-concept design that combines the kitchen and living room, perfect for family gatherings and relaxation. There is also a guest WC on the ground floor, and to the side of the living area, stairs lead to the first floor.

On the first floor, there are three luxurious bedrooms, each with its own bathroom, ensuring complete privacy and comfort for every family member. One of the bedrooms will be equipped with a large bathtub, perfect for relaxing after a long day. The hallway on the first floor features a glass wall, offering an incredible view of the surrounding nature, and the hallway leads to a balcony, ideal for enjoying morning coffee or sunset.

For maximum comfort, the house is equipped with underfloor heating powered by a heat pump, while air conditioning units ensure cooling during hot summer days. Solar panels have been installed on the roof, providing high energy efficiency and reducing energy costs. The house also has two parking spaces, ensuring easy and practical access.

Currently under construction, the house offers future owners the opportunity to personalize the interior according to their preferences. The planned completion date is by the end of the year, with a "turnkey" option available, providing fully move-in-ready living space upon completion.

This stone house is perfect for those seeking a peaceful life in nature, with modern amenities and breathtaking views.

ID CODE: IS1519469

Karlo Šestan
Asistent u posredovanju
Mob: 091/361-1922
Tel: 052/771-458
E-mail: karlo.sestan@dogma-nekretnine.com
www.dogma-nekretnine.com
Если вы хотите узнать больше, вы можете поговорить с Karlo Šestan.
Характеристики
Типология
Отдельный дом на одну семью
Договор
Продажа
Этаж
1
Лифт
Да
Площадь
250 m² | коммерческая 2 750 m²
Помещения
5
Спальни
3
Ванные
3
Балкон
Да
Терраса
Да
Деталь поверхности

Жилой фонд

Этаж
1
Площадь
250,0 m²
Коэффициент
100%
Тип площади
Основная
Коммерческая площадь
250,0 m²

Участок

Этаж
Нулевой этаж
Площадь
2 500,0 m²
Коэффициент
100%
Тип площади
Дополнительная
Коммерческая площадь
2 500,0 m²
Информация о ценах
Цена
€ 400 000
Цена за м²
145 €/m²
Энергоэффективность
  • Год постройки

    1880
  • Энергетическая сертификация

    Не подлежащий
Откройте для себя каждый уголок объекта недвижимости
+10
Доп. опции

Свяжитесь с рекламодателем

Или