Двухкомнатная квартира новое, первый этаж, Privlaka

€ 270 000
2
85 m²
1
1
Нет
Балкон

Пометка

Объявление обновлено 15.01.2026
Описание

ID: iro-343

Kompleks od tri manje stambene zgrade/urbane vile, Privlaka nedaleko Zadra i Nina.
Nalaze se svega 100-ak metara od mora. Svaka vila ima svoj bazen (zajednički od svih stanara) na svojoj okućnici. Stanovi u prizemlju imaju vrtove, a stanovi na zadnjem (2.) katu krovnu terasu. Svakom stanu pripada i jedno vanjsko parkirno mjesto.
Vila Astoria ima šest stambenih jedinica, a vila Estera i vila Gina imaju deset stambenih jedinica (prizemlje i dva kata).
Zgrade se nalaze u fazi grube gradnje (kraj proljeća 2024. god.), a završetak izgradnje i useljenje u zgrade je planirano za kraj 2025. god.
Zgrade se grade i uređuju vrhunskim materijalima, 1. klase; protupožarna i protuprovalna ulazna vrata u stanove, vanjska PVC stolarija antracit boje, troslojna s električnim podizačima roleta i komarnicima, klime u svim sobama (dnevni boravak i spavaće sobe), podno grijanje u kupaonicama, termo fasada debljine 10 cm (očekivani energetski razred A+) videoportafon na ulazu u zgrade.
Na podovima će se nalaziti keramika (najviše kvalitete).
Zgrade će biti spojene na gradski vodovod i imat će septičke jame s biopročišćivačem.

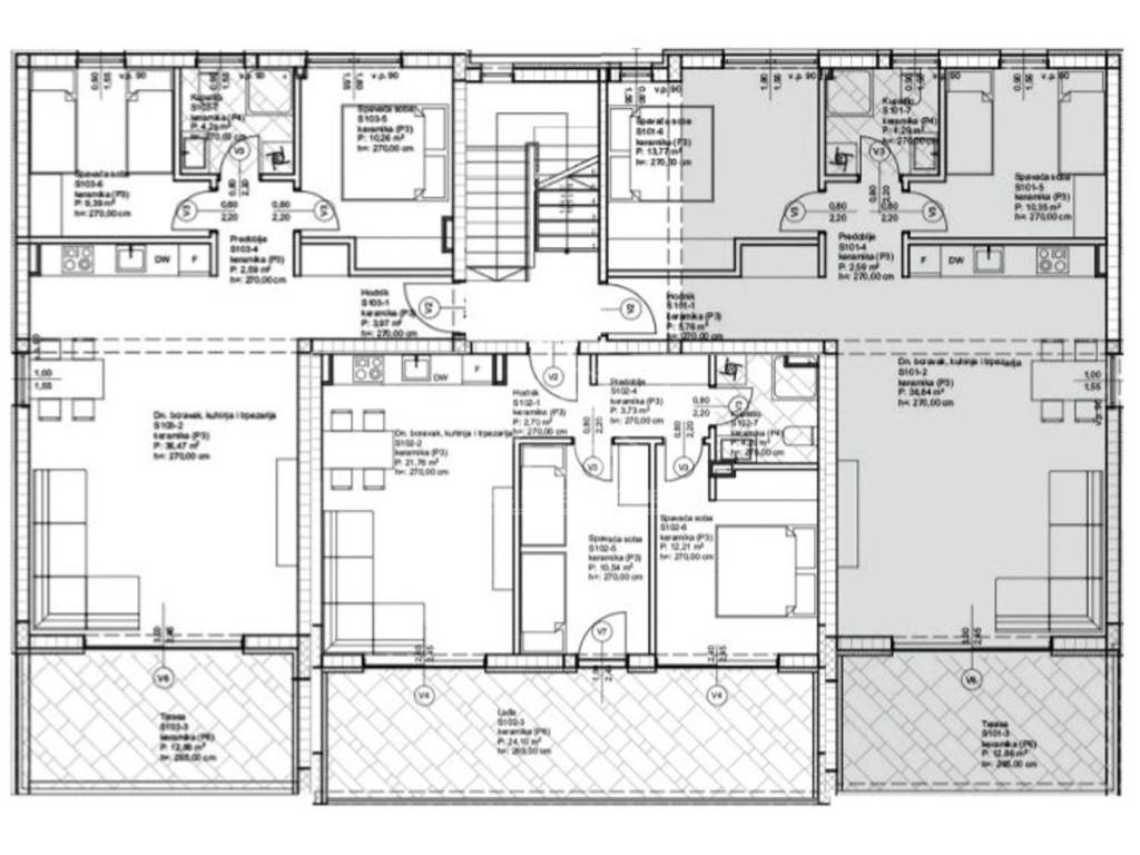
VILA GINA

Stan S5 na 1. katu, dvosoban, sadrži: hodnik, blagovaonicu s kuhinjom i dnevnim boravkom (pov. 36.84 m2), predsoblje, dvije spavaće sobe (pov. 13.77 m2 i 10.37 m2), kupaonicu (pov. 4.29 m2) i natkrivenu terasu (pov. 12.86 m2 x 0.5 = 6.43 m2).
Orijentacija stana je JUGOISTOK.
Stan ima i jedno parkirno mjesto.
Ukupna pov. stana sa svim pripatcima iznosi 85.77 m2.
CIJENA STANA: 270.000,00 EURA.



novogradnja, okolica Zadra, blizina mora, pogled na more
Характеристики
Типология
Квартира | Средний класс недвижимости
Договор
Продажа
Этаж
1 этаж
Этажность здания
2
Лифт
Нет
Площадь
85 m²
Помещения
2
Спальни
2
Ванные
1
Балкон
Да
Терраса
Нет
Отопление
Автономное, напольное
Кондиционер
Автономное
Вид
Море
Другие характеристики
  • Бассейн
Информация о ценах
Цена
€ 270 000
Цена за м²
3 176 €/m²
Энергоэффективность

Потребление энергии

A+

Откройте для себя каждый уголок объекта недвижимости
+13
Доп. опции

Свяжитесь с рекламодателем

Или