1/16


Отдельный дом на одну семью 129 m², новая, Pregrada
€ 311 095
Объявление обновлено 05.03.2026
Описание
ID: 42578
ID CODE: 42578
Mirna Lukić
Agent pripravnik
Mob: +385 99 769 9927
Tel: +385 91 480 8808
E-mail: mirna@dux-nekretnine.hr
www.dux-nekretnine.hr
Характеристики
- Типология
- Отдельный дом на одну семью
- Договор
- Продажа
- Этаж
- 1
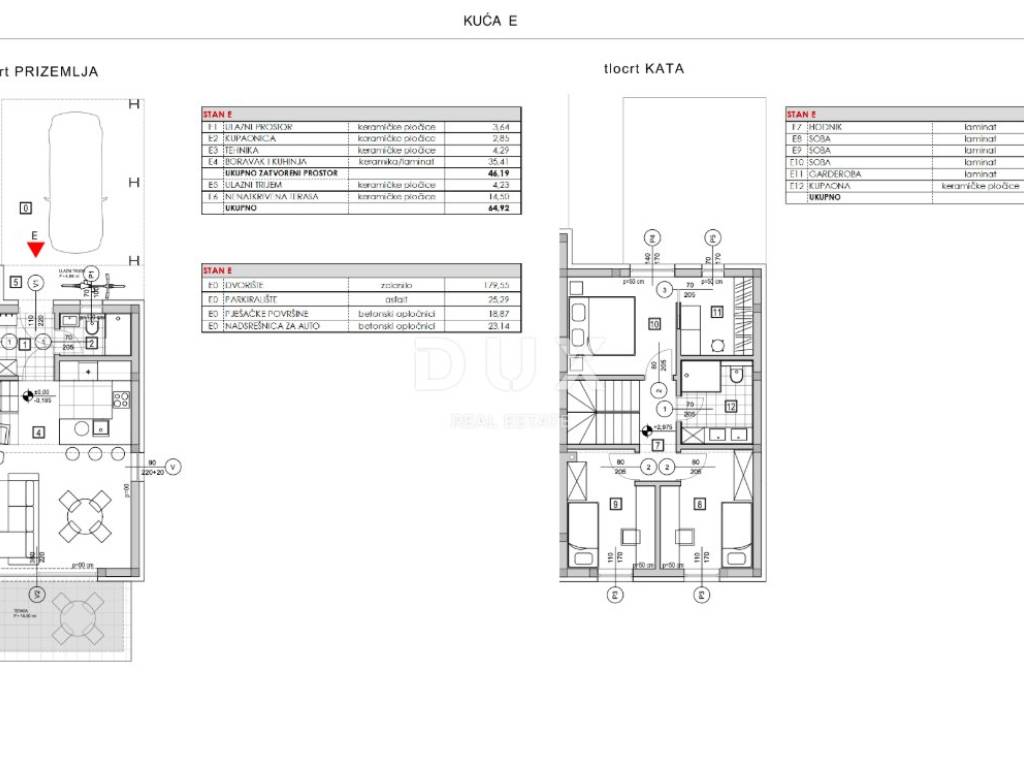
- Площадь
- 129 m² | коммерческая 325 m²
- Помещения
- 5+
- Спальни
- 3
- Ванные
- 2
- Балкон
- Нет
- Терраса
- Да
- Кондиционер
- Автономное, холод/тепло
Деталь поверхности
Жилой фонд
- Этаж
- 1
- Площадь
- 129,0 m²
- Коэффициент
- 100%
- Тип площади
- Основная
- Коммерческая площадь
- 129,0 m²
Участок
- Этаж
- Нулевой этаж
- Площадь
- 196,0 m²
- Коэффициент
- 100%
- Тип площади
- Дополнительная
- Коммерческая площадь
- 196,0 m²
Информация о ценах
- Цена
- € 311 095
- Цена за м²
- 957 €/m²
Откройте для себя каждый уголок объекта недвижимости
Доп. опции