Четырехкомнатная квартира Poreč, Luka, Пореч

€ 435 000
4
106 m²
1
T
Нет

Пометка

Объявление обновлено 22.01.2026
Описание

This description has been translated automatically and may not be accurate

ID: 40

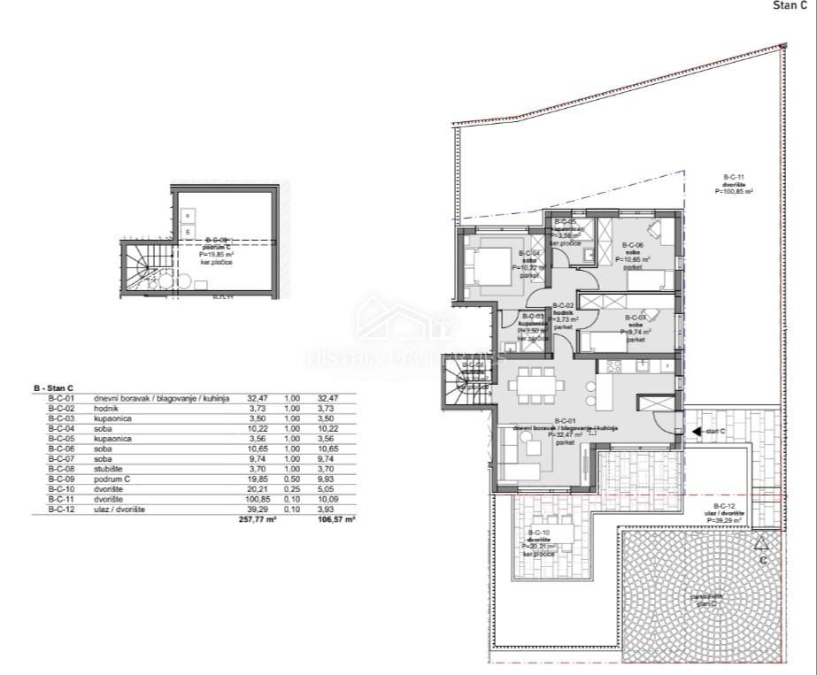
This ground floor apartment with a courtyard, private entrance and basement is located in a sought-after location in a family settlement with modern buildings.

The apartment consists of a small hallway with a wardrobe that leads us to a spacious living room with a kitchen and dining area and an exit to the terrace and the front yard that surrounds this apartment.
Glass walls have been installed throughout the entire living room, allowing for a large influx of light.
The apartment also has 3 bedrooms with exits to the back yard, a bathroom, an additional toilet and a basement.

The apartment comes with 2 parking spaces in the yard that are connected to a separate entrance that will be used only by this apartment, allowing the new owners privacy and peace and separation from other tenants.
The entire apartment has underfloor heating with a heat pump and the first phase for air conditioning.

VAT is included in the price of the apartment and the buyer does not pay real estate tax.

An excellent location for people who recognize the right opportunity and quality are an ideal investment for a quality and comfortable stay.

The property can only be viewed after signing a Broking service agreement, which forms the basis for the further process related to the purchase and sale, as well as the commission fee in accordance with the Real Estate Brokerage Law.
In the case of a purchase contract, the broker fee is 3% excluding VAT and will be charged to both the buyer and the seller upon signing the preliminary contract/purchase agreement.

ID CODE: 40

Sanel Budimlić
Agent s licencom
Mob: +385 99 205 2733
Tel: +385 99 205 2733
E-mail: sanel@histriaproperties.com
www.histriaproperties.com
Характеристики
Типология
Квартира
Договор
Продажа
Этаж
Нулевой этаж
Этажность здания
1
Лифт
Нет
Площадь
106 m²
Помещения
4
Спальни
3
Ванные
1
Балкон
Нет
Терраса
Нет
Гараж, машиноместа
2 в общая парковка/гараж
Отопление
Автономное, воздушное
Кондиционер
Автономное, холод/тепло
Информация о ценах
Цена
€ 435 000
Цена за м²
4 104 €/m²
Энергоэффективность

Потребление энергии

A

Планировка
Откройте для себя каждый уголок объекта недвижимости
+9
Доп. опции

Свяжитесь с рекламодателем

Или