1/4


Трехкомнатная квартира Vodice, Vodice
€ 487 000
Объявление обновлено 01.04.2026
Описание
ID: 717
ID CODE: 717
Martina Šubic
Agent s licencom
Mob: +385 91 902 9763
Tel: +385 51 640 777
E-mail: martina@maison-nekretnine.com
www.maison-nekretnine.com
Характеристики
- Типология
- Квартира
- Договор
- Продажа
- Этаж
- 2 этаж
- Этажность здания
- 2
- Лифт
- Нет
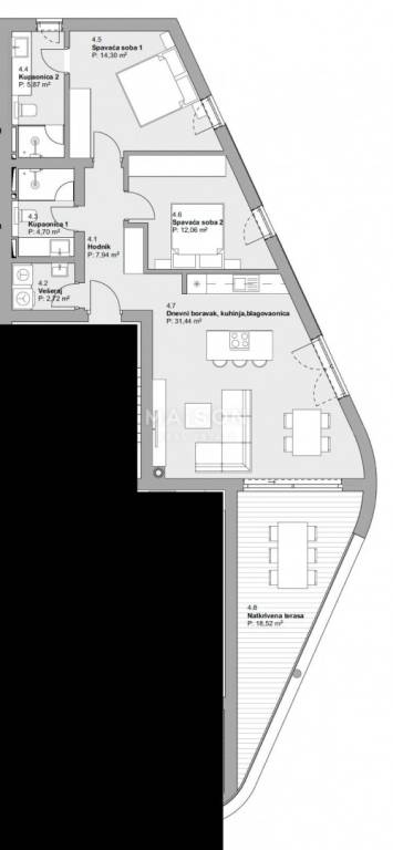
- Площадь
- 97 m²
- Помещения
- 3
- Спальни
- 2
- Ванные
- 2
- Балкон
- Нет
- Терраса
- Да
- Гараж, машиноместа
- 1 в общая парковка/гараж
- Кондиционер
- Автономное, холод/тепло
Информация о ценах
- Цена
- € 487 000
- Цена за м²
- 5 021 €/m²
Планировка

Откройте для себя каждый уголок объекта недвижимости
Доп. опции