Отдельный дом на несколько семей Kostrena, Kostrena

€ 820 000
4
191 m²
3
Нет
Терраса

Пометка

Объявление обновлено 18.04.2026
Описание

This description has been translated automatically and may not be accurate

ID: 193

HOUSE SOUTH TWO – A TWO-STOREY RESIDENCE WITH AN INFINITY POOL AND EXCLUSIVE OUTDOOR SPACE

In the heart of picturesque Kostrena, in the Rožmanići settlement, lies Kostrena Sunset, an exclusive residential project that combines top-notch construction, sophisticated design and the natural harmony of coastal life. Within this luxurious complex is House South two, an elegant two-story residence designed for those seeking a combination of modern luxury, spaciousness and spectacular sea views.
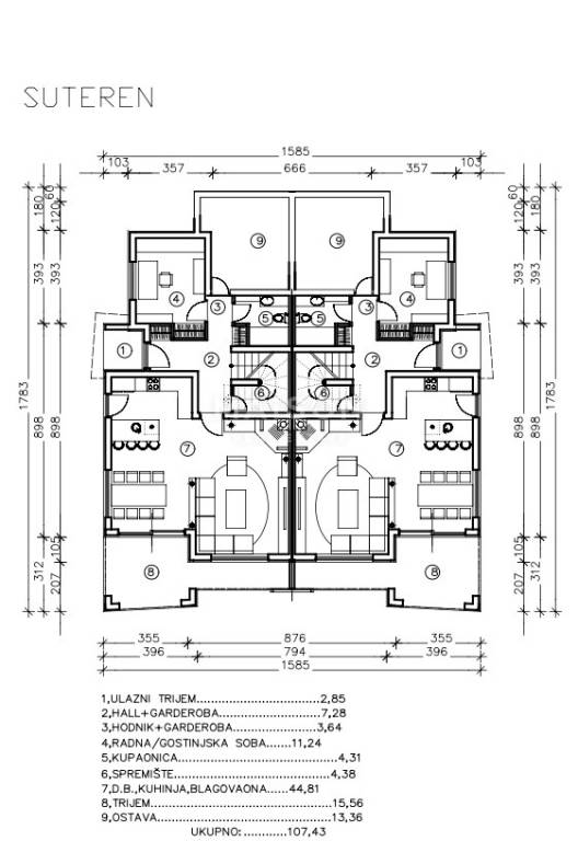
This modern residential unit extends over two floors, with a carefully designed layout that provides superior comfort and functionality. The basement floor is designed as a spacious living area with an emphasis on the fluidity of space and connection with the outdoor environment. It consists of an entrance porch, hallway, wardrobe, study or guest room, bathroom, storage room, spacious living room, kitchen and dining room, with direct access to a covered porch that provides a feeling of complete enjoyment of the Mediterranean environment.
The ground floor offers an intimate space for relaxation, with three spacious bedrooms, two modern bathrooms, a dressing room and a terrace, while a staircase connects the ground floor with the basement of the house. Additional practicality is provided by the garage, which provides secure parking and direct access to the living space.
The outdoor area of ​​this residence is a true private oasis of luxury. The horticulturally decorated garden of 239.22 m² perfectly complements the panoramic sea view, while the 30.75 m² infinity pool provides an impression of infinity and complete harmony with the environment. A special advantage of this residence is the space under the pool, ideal for socializing with family and friends, a barbecue or a children's playground, providing additional opportunities for enjoyment and relaxation in a private environment.
The house has two outdoor parking areas (P-3 and P-4), each of 12 m², ensuring enough space for practical and safe parking. The total usable area of ​​​​the associated yard, pool and parking spaces is 293.97 m².

The construction and execution reflect the high standards of luxury housing. The structure of the building is made of reinforced concrete, ensuring superior resistance and longevity. The interior exudes elegance thanks to the high-quality multi-layer oak parquet suitable for underfloor heating, while the interior staircases covered with hand-finished Istrian white stone add an additional touch of exclusivity and authenticity.
The exterior joinery is made of PVC SCHUCO LIVING 82 AS in anthracite color, with three-layer thermal insulating glass that provides a high level of energy efficiency and protection from weather influences. Automatic electric shutters ensure privacy and protection from the sun, while tempered glass on the balconies allows for an unobstructed view of the sea. The facade of the building is made in the BAUMIT PRO ETICS system with a 10 cm thick insulation layer, finished with silicate plaster in elegant gray and white tones.
Energy efficiency is additionally ensured by water-based underfloor heating via a heat pump, while all rooms are equipped with multi-split air conditioner inverters, ensuring the perfect temperature throughout the year. Thanks to advanced technical solutions and high-quality materials, the building has an A+ energy certificate, which ensures maximum energy efficiency, reduced energy consumption and long-term profitability.

House South two represents a rare opportunity for those who want a luxurious home in a prestigious location by the sea, with a flawless combination of architecture, top-notch construction and natural surroundings. It is perfect both as an exclusive home and as a safe investment with long-term value.

For more information and a private tour, contact us.

Maison – because home is not just a place, but a way of life.

ID CODE: 193

Dario Oriović
CEO
Mob: +385 91 474 0205
Tel: +385 51 640 777
E-mail: dario@maison-nekretnine.com
www.maison-nekretnine.com
Характеристики
Типология
Отдельный дом на несколько семей
Договор
Продажа
Этажность здания
1
Лифт
Нет
Площадь
191 m²
Помещения
4
Спальни
3
Ванные
3
Балкон
Нет
Терраса
Да
Гараж, машиноместа
1 в частный гараж/парковка, 3 в общая парковка/гараж
Отопление
Автономное, воздушное
Кондиционер
Автономное, холод/тепло
Информация о ценах
Цена
€ 820 000
Цена за м²
4 293 €/m²
Энергоэффективность

Потребление энергии

A+

Планировка
Откройте для себя каждый уголок объекта недвижимости
+15
Доп. опции

Свяжитесь с рекламодателем

Или