Трехкомнатная квартира Privlaka, Privlaka

€ 275 000
3
96 m²
2
T
Нет

Пометка

Объявление обновлено 22.01.2026
Описание

This description has been translated automatically and may not be accurate

ID: 58

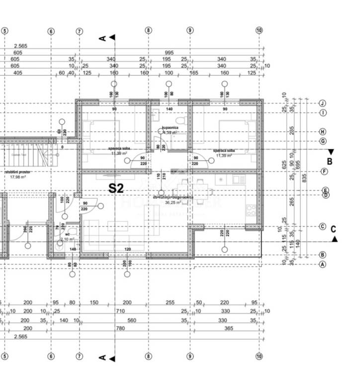
Apartment S2 – Modern apartment under construction with a garden, 200m from the beach For sale is an apartment in a new building, located just 200 meters from the well-maintained beach, with a large garden. The apartment consists of a spacious living room, two bedrooms, bathroom, additional toilet, hallway, covered terrace. The price also includes two parking spaces. The building is built with thermal insulation brick blocks, and the apartment is equipped with electric underfloor heating and four air conditioners for optimal temperature throughout the year. PVC joinery with triple-layer glass, roller shutters and mosquito nets ensure high energy efficiency, while the facade is insulated with 10 cm of polystyrene. The floor coverings combine high-quality ceramics and laminate. The drainage is solved with a bio-purifier. S2 area m2: Hallway 3.77m2 Bathroom 4.39m2 WC/Laundry room 2.10m2 Kitchen, dining room, living room 32.91m2 Bedroom 11.39m2 Bedroom 11.39m2 Covered terrace 5.07m2 2 parking spaces 25.00m2 Garden 99.81m2 Total S2: 195.83m2 Energy certificate: A Floor plan and use: 1.10.2025 Move-in: summer 2025. For more information and an agreement, please feel free to contact us! Contact: Kristian Mikec (training associate) E-mail: info@homefinder.hr Mob: 095 299 9996 www.homefinder.hr

ID CODE: 58

Centralno
Mob: +385 95 299 9996
E-mail: info@homefinder.hr
www.homefinder.hr
Характеристики
Типология
Квартира
Договор
Продажа
Этаж
Нулевой этаж
Этажность здания
2
Лифт
Нет
Площадь
96 m²
Помещения
3
Спальни
3
Ванные
2
Балкон
Нет
Терраса
Нет
Гараж, машиноместа
2 в общая парковка/гараж
Отопление
Автономное, воздушное
Кондиционер
Автономное, холод/тепло
Информация о ценах
Цена
€ 275 000
Цена за м²
2 865 €/m²
Энергоэффективность

Потребление энергии

A

Планировка
Откройте для себя каждый уголок объекта недвижимости
+37
Доп. опции

Свяжитесь с рекламодателем

Или