Трехкомнатная квартира Vodice, Vodice

€ 546 000
3
104 m²
1
T
Нет
Балкон
Терраса

Пометка

Объявление обновлено 22.01.2026
Описание

This description has been translated automatically and may not be accurate

ID: A-680-S1

VODICE - In an exclusive location, 2nd row to the sea, a luxurious apartment with 2 bedrooms, a terrace and a 65 m2 garden is for sale!

A beautiful pebble beach is located just 30 m away, directly in front of the building, and the center is 950 m away.

The construction of a small residential building with a total of 3 luxury apartments has begun. The building will have three floors: ground floor + 1st floor + 2nd floor. High-quality materials and equipment that follow modern standards and current trends will be used in the construction, with modern design and carefully selected elements so that the property meets the highest criteria of modern living. Among the equipment, we highlight: 10 cm polystyrene facade, security doors, top-quality ceramics, exterior joinery (triple-layer glass), electric roller shutters, mosquito nets, glass railings, underfloor heating, air conditioning in all rooms and modern sanitary equipment. This project has been carefully designed to combine sophisticated design and functionality. The planned completion of construction is 12/2026.

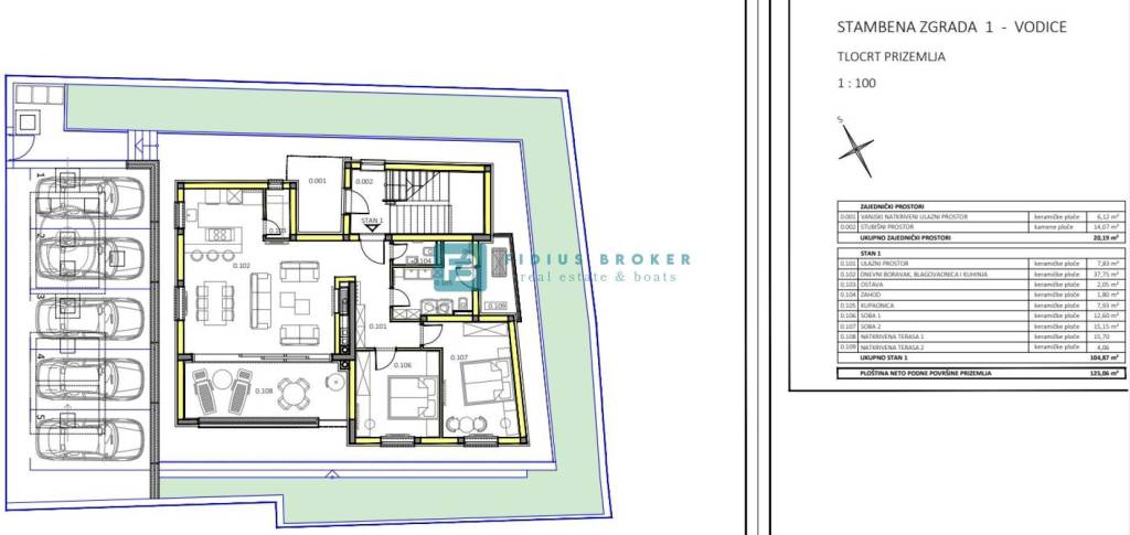
Apartment S1 is located on the ground floor of a building with a total net area of ​​104.87 m² (with 1 parking space and a garden of approx. 65 m²). It consists of an entrance hall, kitchen with pantry, dining room, spacious living room (37.75 m²) with access to a covered loggia of 15.70 m², and two bedrooms, bathroom, separate toilet, covered loggia of 4.06 m². The apartment has one parking space.

The price is €546,000 (VAT included - the buyer is exempt from paying 3% real estate tax).

OTHER AVAILABLE IN THE BUILDING

1ST FLOOR

Apartment S2 is located on the 1st floor of a building with a total area of ​​109.59 m² (with 2 parking spaces). It consists of an entrance hall, kitchen with pantry, dining room, spacious living room (37.75 m²) with access to a covered loggia of 15.40 m² with a beautiful view of the sea, and two bedrooms, bathroom, separate toilet, two covered loggias. The apartment has two parking spaces. The price is €586,000 (VAT included - the buyer is exempt from paying 3% real estate tax).

2ND FLOOR

Apartment S3 is located on the 2nd floor of a building with a total net usable area of ​​109.59 m² (with 2 parking spaces). It consists of an entrance hall, kitchen with pantry, dining room, spacious living room (37.75 m²) with access to a covered loggia of 15.40 m² with a beautiful view of the sea, two bedrooms, bathroom, separate toilet, two covered loggias. Price: €592,000 (VAT included - the buyer is exempt from paying 3% real estate tax).

Vodice is one of the most attractive tourist destinations on the Adriatic, located on the coast of the Šibenik Bay. It is known for its rich history, picturesque streets and traditional Dalmatian architecture. This area offers a rich selection of restaurants with authentic Dalmatian cuisine, cafes, shops and marinas, along with beautiful beaches and promenades that stretch along the sea. Vodice is located near the Krka and Kornati national parks, and is also known for its diverse cultural events. It is an ideal place to live and vacation all year round.

Contact us for more information via email or phone!

ID CODE: A-680-S1

Fidius Broker
Voditelj ureda
Mob: ++385 91 3375522
Tel: ++385 91 5135719
E-mail: info@fidiusbroker.hr
www.fidiusbroker.hr
Характеристики
Типология
Квартира
Договор
Продажа
Этаж
Нулевой этаж
Этажность здания
2
Лифт
Нет
Площадь
104 m²
Помещения
3
Спальни
2
Ванные
1
Балкон
Да
Терраса
Да
Гараж, машиноместа
1 в общая парковка/гараж
Отопление
Автономное, воздушное
Кондиционер
Автономное, холод/тепло
Информация о ценах
Цена
€ 546 000
Цена за м²
5 250 €/m²
Энергоэффективность
  • Отопление

    Автономное, воздушное
  • Кондиционер

    Автономное, холод/тепло
  • Энергетическая сертификация

    Не классифицирована
Планировка
Доп. опции

Свяжитесь с рекламодателем

Или