Квартира Rovinj, Rovinj

€ 1 047 000
5
209 m²
3
1
Да
Терраса

Пометка

Объявление обновлено 22.01.2026
Описание

This description has been translated automatically and may not be accurate

ID: 2676

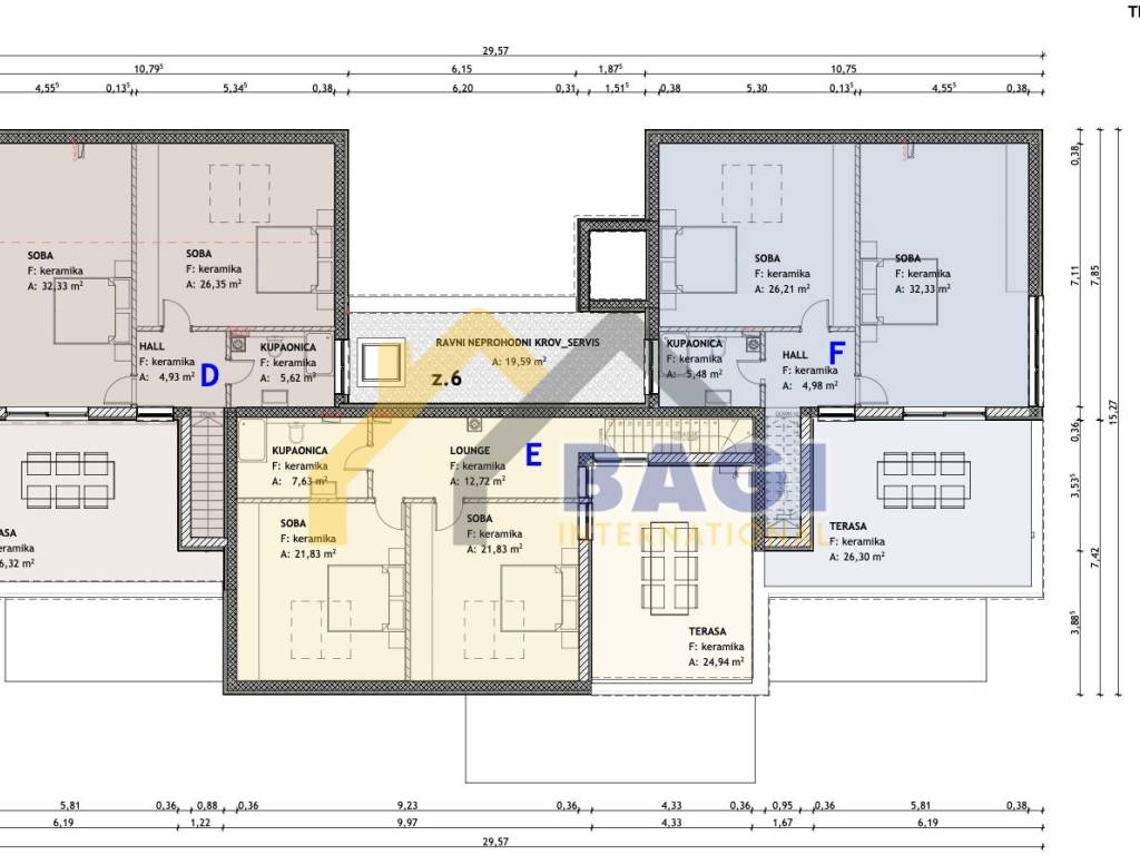
Stan F
For sale is a luxurious apartment in a beautiful location in Rovinj. It is located only 250 meters from the sea and very close to beautiful beaches and the city center. All content is in the immediate vicinity. The mentioned apartment is located on the first floor in a building with a total of 6 apartments. The apartment consists of two floors. The first floor consists of an entrance hall, two bedrooms and two bathrooms, an entrance hall, a living room and a kitchen with a dining room, a bedroom and a balcony. On the second floor there are two bedrooms with a bathroom, a hallway and a spacious terrace. From the second floor there is an open view of the sea and Rovinj
Quality and equipment of the building:
- air-conditioned
- underfloor heating with city gas
- ceramic floors - parquet
- security entrance door
- complete interior walls inside apartments - knauf system
- aluminum carpentry with electric blinds and mosquito nets
- video intercom
- stone wool facade 10 cm
- glass balcony railings
- two parking spaces in the garage per apartment + one outside
- elevator from the garage to 1. floor
- storage room for each apartment

Planned completion of construction at the end of 2023/beginning of 2024.

for more information call the number
+385981729339 - Mara Benčić mara.bencic@bagi-immobilien.hr
+385998440297 Danijel Ilić danijel@bagi-immobilien.hr

ID CODE: 2676

Aida Kudić
Agent s licencom
Mob: 0911509059
E-mail: aida.kudic@bagi-international.hr
https://bagi-nekretnine.hr
Характеристики
Типология
Квартира
Договор
Продажа
Этаж
1 этаж
Этажность здания
1
Лифт
Да
Площадь
209 m²
Помещения
5
Спальни
4
Ванные
3
Балкон
Нет
Терраса
Да
Гараж, машиноместа
1 в частный гараж/парковка, 2 в общая парковка/гараж
Отопление
Автономное, воздушное
Кондиционер
Автономное, холод/тепло
Информация о ценах
Цена
€ 1 047 000
Цена за м²
5 010 €/m²
Энергоэффективность
  • Год постройки

    2023
  • Отопление

    Автономное, воздушное
  • Кондиционер

    Автономное, холод/тепло
  • Энергетическая сертификация

    Не классифицирована
Откройте для себя каждый уголок объекта недвижимости
+5
Доп. опции

Свяжитесь с рекламодателем

Или