Отдельный дом на одну семью Baderna, Poreč, Baderna - Matulini, Пореч

€ 725 000
4
170 m²
3
Нет

Пометка

Объявление обновлено 22.01.2026
Описание

This description has been translated automatically and may not be accurate

ID: 8734543

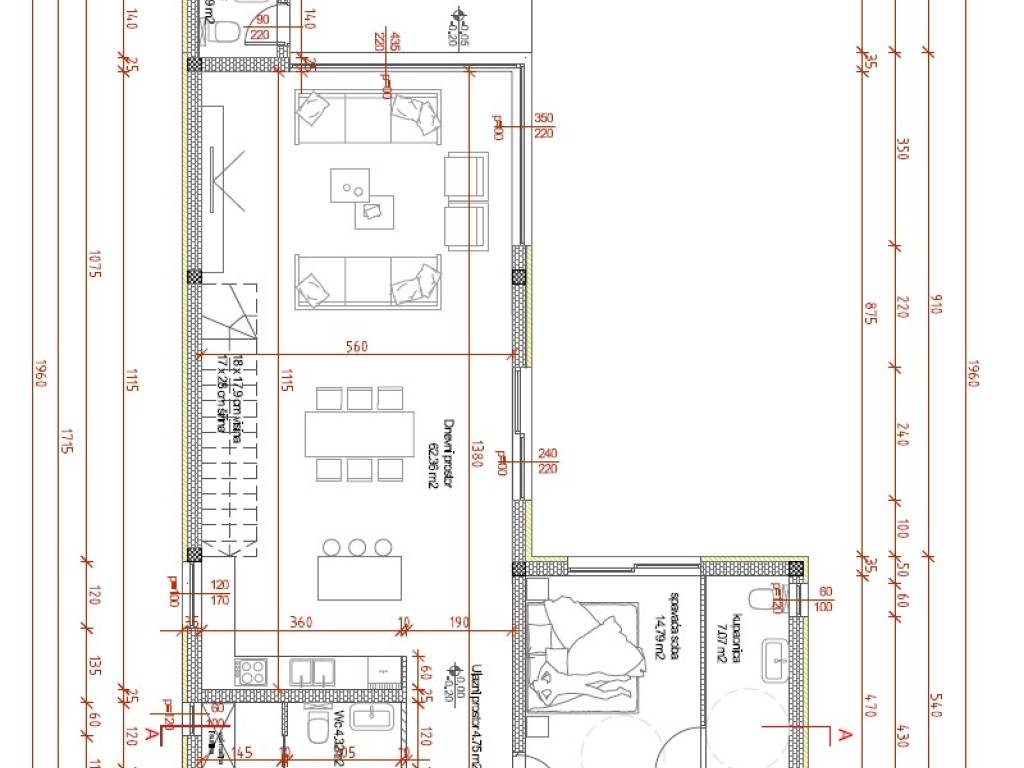
In a quiet and picturesque setting near Poreč, this elegant villa is under construction. Set on a 968 m² plot, the villa has a gross area of 230 m², or a net area of 170 m². The ground floor includes a storage room, laundry room, WC, a bedroom with its own bathroom, a spacious kitchen with a dining area, and a living room. From the living room, you can access a covered terrace with a summer kitchen and an additional WC.

The first floor features one bedroom with a private bathroom, as well as a master bedroom with an en-suite bathroom, a walk-in closet, and a spacious terrace offering stunning views of the untouched Istrian nature.

In front of the villa, there is a pool measuring 40 m², and further along is a cozy area for relaxation and socializing around a fire pit. The entire villa will be enclosed, and within the plot, there is parking for three to four cars.

The villa is sold as "turnkey" without furniture, but the same furniture as shown in the visualizations can be offered for an additional fee. This property provides a perfect blend of modern architecture, high-quality materials, and a pleasant ambiance.

ID CODE: 8734543

Tex Immobilie
Agent s licencom
Mob: 0989826003
Tel: 0994705455
E-mail: info@tex-immobilie.com
www.tex-immobilie.com
Характеристики
Типология
Отдельный дом на одну семью
Договор
Продажа
Лифт
Нет
Площадь
170 m²
Помещения
4
Спальни
3
Ванные
3
Балкон
Нет
Терраса
Нет
Гараж, машиноместа
3 в общая парковка/гараж
Отопление
Автономное, воздушное
Кондиционер
Автономное, холод/тепло
Информация о ценах
Цена
€ 725 000
Цена за м²
4 265 €/m²
Энергоэффективность
  • Год постройки

    2024
  • Отопление

    Автономное, воздушное
  • Кондиционер

    Автономное, холод/тепло
  • Энергетическая сертификация

    Не классифицирована
Откройте для себя каждый уголок объекта недвижимости
+14
Доп. опции

Свяжитесь с рекламодателем

Или