Участок под застройку Продажа

€ 149 000
964 m²

Пометка

Объявление обновлено 22.01.2026
Описание

ID: 800725

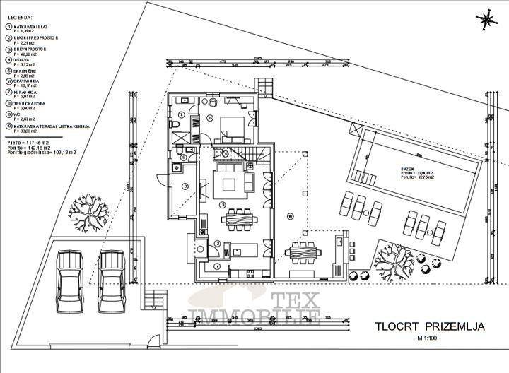
Na prodaju građevinsko zemljište površine 964 m² s građevinskom dozvolom i projektom za izgradnju istarske vile s bazenom. Parcela se nalazi na mirnoj lokaciji, kao posljednja u građevinskoj zoni, s pristupom asfaltiranoj cesti i okružena je netaknutom prirodom.

Projekt predviđa vilu površine 169 m² neto, s tri spavaće sobe, tri kupaonice, dodatnim toaletom, prostranim dnevnim boravkom s kuhinjom i blagovaonicom, tehničkom sobom, spremištem, natkrivenom terasom s ljetnom kuhinjom, bazenom i parkirnim mjestima.

Kompletna infrastruktura dostupna je uz parcelu (struja i voda). Svi papiri su uredni, gradnja je moguća odmah.

Izvrsna prilika za miran obiteljski život ili kao investicija za turistički najam.

Udaljenosti:
• Poreč – 17 km
• Rovinj – 25 km
• Limski kanal – 10 km
• Motovun – 25 km
• Aquapark – 17 km
• Dinopark – 19 km
• Adrenalinski park – 1 km

ID CODE: 800725

Tex Immobilie
Agent s licencom
Mob: 0989826003
Tel: 0994705455
E-mail: info@tex-immobilie.com
www.tex-immobilie.com
Характеристики
Договор
Продажа
Типология
Участок под застройку
Площадь
964 m²
Информация о ценах
Цена
€ 149 000
Цена за м²
155 €/m²
Откройте для себя каждый уголок объекта недвижимости
+12
Доп. опции

Свяжитесь с рекламодателем

Или