Отдельный дом на одну семью Diklo, Zadar, Diklo - Puntamika, Задар

€ 1 400 000
5+
626 m²
3+
Нет
Терраса

Пометка

Объявление обновлено 22.01.2026
Описание

This description has been translated automatically and may not be accurate

ID: 122

LUXURY VILLA WITH POOL AND A SEA VIEW!

Luxury villa with pool and sea view for sale in the city district Diklo!

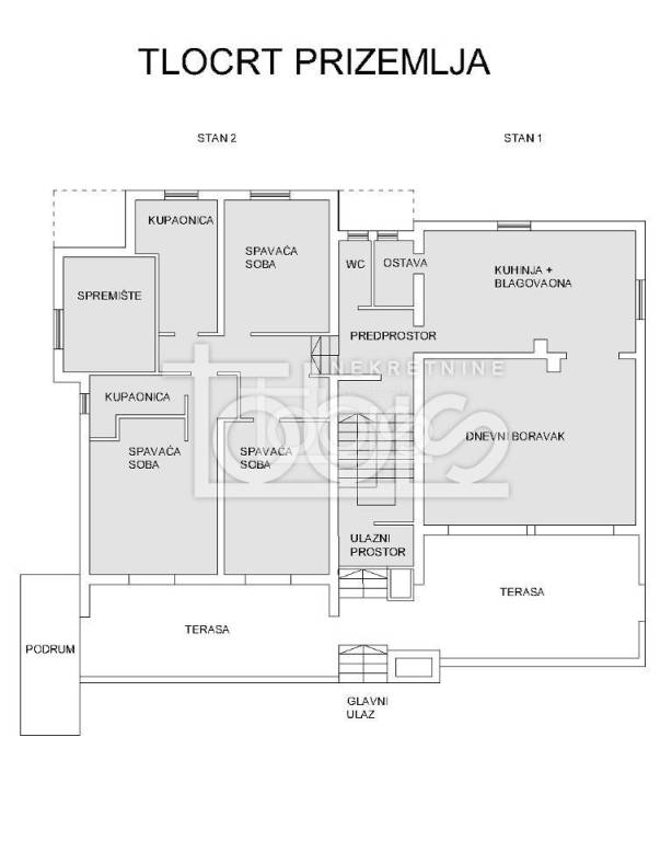
The villa has a ground floor and two floors, basement, separate garage with three parking spaces and open parking (capacity is 10 parking spaces), swimming pool with storage and toilets, and a large garden with a beautiful orchard.

The interior of the house is made of 14 bedrooms (each which a balcony or terrace), 6 kitchens, 12 bathrooms, 4 toilets, 2 large terraces with outdoor kitchen, barbecue and gathering area and living rooms.

The building can be used as:
-- 3 living or renting spaces (1 apartment per floor) or
- 6 independent living or renting units (two units on each floor)

The house is regularly maintained, renovated and painted every year. It was built from material of a high quality.
It has an energy A energy certificate and solar panels!

It is close to the bus station, supermarket, laundry service, and is 550 meters distanced from the sea.

Completely furnished and ready to move in!

Suitable for living or renting!

ID CODE: 122

Branko Đ.
Voditelj ureda
Mob: +385 99 29 29 294
E-mail: branko@tobis.hr
www.tobis-nekretnine.com
Характеристики
Типология
Отдельный дом на одну семью
Договор
Продажа
Лифт
Нет
Площадь
626 m²
Помещения
5+
Спальни
0
Ванные
3+
Балкон
Нет
Терраса
Да
Гараж, машиноместа
1 в частный гараж/парковка, 7 в общая парковка/гараж
Отопление
Централизованное, напольное
Кондиционер
Автономное, холод/тепло
Информация о ценах
Цена
€ 1 400 000
Цена за м²
2 236 €/m²
Энергоэффективность

Потребление энергии

A

Планировка
Откройте для себя каждый уголок объекта недвижимости
+27
Доп. опции

Свяжитесь с рекламодателем

Или