Отдельный дом на одну семью Poreč, Luka, Пореч

€ 1 390 000
5
292 m²
3+
Нет

Пометка

Объявление обновлено 22.01.2026
Описание

This description has been translated automatically and may not be accurate

ID: ID03066

In a beautiful location in the heart of Istria, surrounded by untouched nature, this luxurious villa with a net area of 292 m² is situated. With a spacious plot of 1,408 m², the villa offers complete privacy and comfort, while exuding sophisticated Mediterranean style.

The villa is spread across two floors, with an additional auxiliary building thoughtfully designed to meet the demands of the most discerning tastes. Every room in the villa is functional and designed with a modern touch, with a special emphasis on details ensuring a luxurious and comfortable stay.

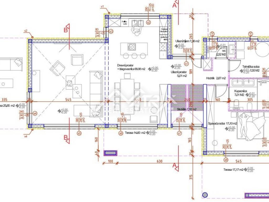
Ground Floor:
Elegant entrance leading to a spacious hallway
Guest toilet
Laundry and technical room
Bedroom with an en-suite bathroom and direct access to the terrace
Open-space kitchen and dining room, perfect for gatherings and family moments
Spacious living room with a gallery, abundant natural light, and access to the sunbathing area
Overflow pool with an integrated jacuzzi for complete relaxation
Exclusive fire pit located between the pool and the villa, ideal for evening relaxation
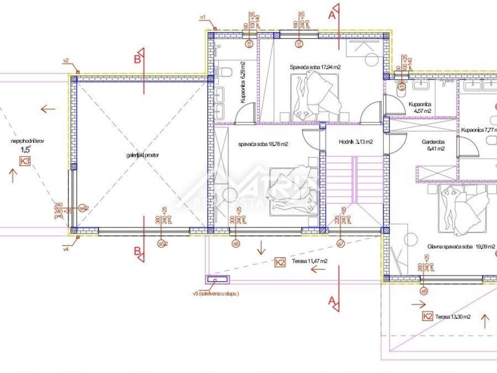
First Floor:
Two spacious bedrooms, each with its own bathroom and access to a private terrace
Another luxurious bedroom with its own bathroom
Auxiliary Building:
Outdoor kitchen with a space for socializing
Separate sanitary facilities
Property Features:
10 cm facade for added insulation
Hansgrohe sanitary fittings in brushed bronze
Toilets, sinks, and bidets in matte white finish
Viessmann heat pump for high energy efficiency
Mitsubishi air conditioning in rooms with motion sensors in glossy black finish
Fireplace in the living room, perfect for winter evenings
Black aluminum joinery with triple glazing combined with blinds and roller shutters (depending on position)
Illuminated stone columns highlighting the outdoor ambiance
Infinity pool with an overflow and integrated jacuzzi (option to choose ceramic or cultured stone for the pool)
Living room with a gallery, perfect for family gatherings
Underfloor heating throughout the villa
Fire pit located between the building and the pool
Three-layer oak parquet in the living area, high-quality Italian ceramic in bathrooms and storage areas
High-quality Italian ceramics
Private enclosed parking
High-resolution security cameras
Alarm system
Auxiliary building (summer kitchen) with a toilet, storage room, integrated shower, and preparation for air conditioning
Irrigation system for maintaining green areas
Preparation for solar panels for additional energy efficiency
Preparation for a heat pump for pool heating
Preparation for a water softener (depurator)
For those who desire an extra touch of exclusivity, the option to fully furnish the house with premium Italian furniture through a renowned design studio is available. This property provides an exceptional opportunity to create a space that perfectly suits your desires and needs.

This villa represents the perfect combination of modern luxury and natural surroundings, ideal for those looking for their piece of paradise in Istria.

For more information and to arrange further customization of the villa to your wishes, feel free to contact us.

ID CODE: ID03066

Lemi Brajković Bassanese
Suradnik u procesu obuke
Mob: +385 99 206 38 91
Tel: +385 52 417 779
E-mail: lemi@matrixrealestate.hr
https://matrixrealestate.hr/

Matrix Real Estate
Voditelj ureda
Mob: +385 52 417 779
Tel: +385 52 417 779
E-mail: info@matrixrealestate.hr
https://matrixrealestate.hr/
Характеристики
Типология
Отдельный дом на одну семью
Договор
Продажа
Лифт
Нет
Площадь
292 m²
Помещения
5
Спальни
4
Ванные
3+
Балкон
Нет
Терраса
Нет
Гараж, машиноместа
2 в общая парковка/гараж
Кондиционер
Автономное, холод/тепло
Информация о ценах
Цена
€ 1 390 000
Цена за м²
4 760 €/m²
Энергоэффективность
  • Кондиционер

    Автономное, холод/тепло
  • Энергетическая сертификация

    Не классифицирована
Откройте для себя каждый уголок объекта недвижимости
+13
Доп. опции

Свяжитесь с рекламодателем

Или