Отдельный дом на одну семью Svetvinčenat, Svetvinčenat

€ 650 000
5
294 m²
3+
Нет
Терраса

Пометка

Объявление обновлено 14.04.2026
Описание

This description has been translated automatically and may not be accurate

ID: ID02134

We present to you this luxury villa with a heated pool, located on a spacious estate, in a quiet village only 6 km from Svetvinčent and 30 km from Rovinj, one of the most desirable tourist destinations in Croatia. The nearest beaches are only a 15-minute drive away. Surrounded by greenery in an isolated location, this property will delight you with its exterior and interior.

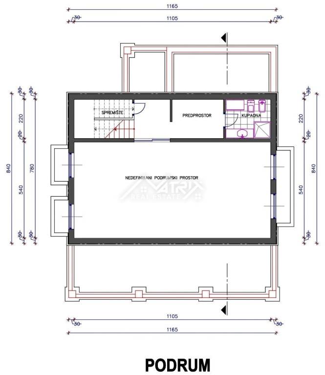
The villa extends over three floors - basement, ground floor and first floor, with a total living area of 294 m2. In the basement, you will find a multifunctional space that can serve as a fitness center or a place for other sports activities. Also, there is a boiler room and pantry, giving you added convenience for storage and organization.

On the ground floor, you will find a spacious living room with a modern kitchen and dining room, creating an ideal place to spend time with family and friends. A bedroom with its own bathroom and a guest toilet complete the ground floor. The specialty of the ground floor is the direct access to the pool terrace with a beautiful covered area. On the first floor there are three bedrooms, each with its own bathroom. The master bedroom has access to its own balcony with an open view of nature and unforgettable sunsets.

The central part of the fenced yard is certainly the large heated pool of 36 m2, and the covered jacuzzi, next to which you will feel as if you are in your own wellness zone. Next to the pool there is a covered grill fireplace with a dining table. The paved part of the garden is intended for parking for at least five vehicles, and two parking spaces are covered. In addition, within the grounds there is a large children's playground, six-hole minigolf, a multi-functional field for indoor football, basketball, volleyball, tennis and other activities.

This is a property worth noting! If you are looking for the perfect place for a new home or investment, this spacious villa will delight you with its functionality and luxury. Do not miss the opportunity to become the owner of this extraordinary property that offers everything you need to enjoy life in Istria. Contact us today and learn more about this unique offer!

ID CODE: ID02134

Daniel Matković
Agent s licencom
Mob: +385 95 506 58 05
Tel: +385 52 417 779
E-mail: daniel@matrixrealestate.hr
https://matrixrealestate.hr/

Matrix Real Estate
Voditelj ureda
Mob: +385 52 417 779
Tel: +385 52 417 779
E-mail: info@matrixrealestate.hr
https://matrixrealestate.hr/
Характеристики
Типология
Отдельный дом на одну семью
Договор
Продажа
Этажность здания
1
Лифт
Нет
Площадь
294 m²
Помещения
5
Спальни
4
Ванные
3+
Балкон
Нет
Терраса
Да
Гараж, машиноместа
5 в общая парковка/гараж
Отопление
Автономное, воздушное
Кондиционер
Автономное, холод/тепло
Другие характеристики
  • Сигнализация
Информация о ценах
Цена
€ 650 000
Цена за м²
2 211 €/m²
Энергоэффективность

Потребление энергии

A+

Планировка
Откройте для себя каждый уголок объекта недвижимости
+36
Доп. опции

Свяжитесь с рекламодателем

Или