Отдельный дом на одну семью Soline, Dobrinj, Dobrinj

€ 270 000
3
80 m²
1
Нет
Терраса

Пометка

Объявление обновлено 06.02.2026
Описание

This description has been translated automatically and may not be accurate

ID: 4416

Soline, sale, detached house built in 1980, on a plot of land with an area of 312 m².

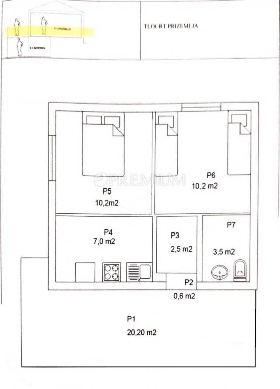
The house has an area of 80 m², consisting of a basement and ground floor.
The basement includes a small storage room, while the ground floor features a living space with a hallway, two bedrooms, a bathroom, and a kitchen with a dining area.

The yard has an area of 246 m² and includes a barbecue.

There is one parking space.
The house is located in an attractive area, just 400 meters from the sea.

ID CODE: 4416

Premium nekretnine Malinska
Mob: +385915474709
Tel: +38551858364
E-mail: info@premium-nekretnine.com
Характеристики
Типология
Отдельный дом на одну семью
Договор
Продажа
Лифт
Нет
Площадь
80 m²
Помещения
3
Спальни
0
Ванные
1
Балкон
Нет
Терраса
Да
Гараж, машиноместа
1 в общая парковка/гараж
Информация о ценах
Цена
€ 270 000
Цена за м²
3 375 €/m²
Энергоэффективность
  • Год постройки

    1980
  • Энергетическая сертификация

    Не классифицирована
Планировка
Откройте для себя каждый уголок объекта недвижимости
+7
Доп. опции

Свяжитесь с рекламодателем

Или